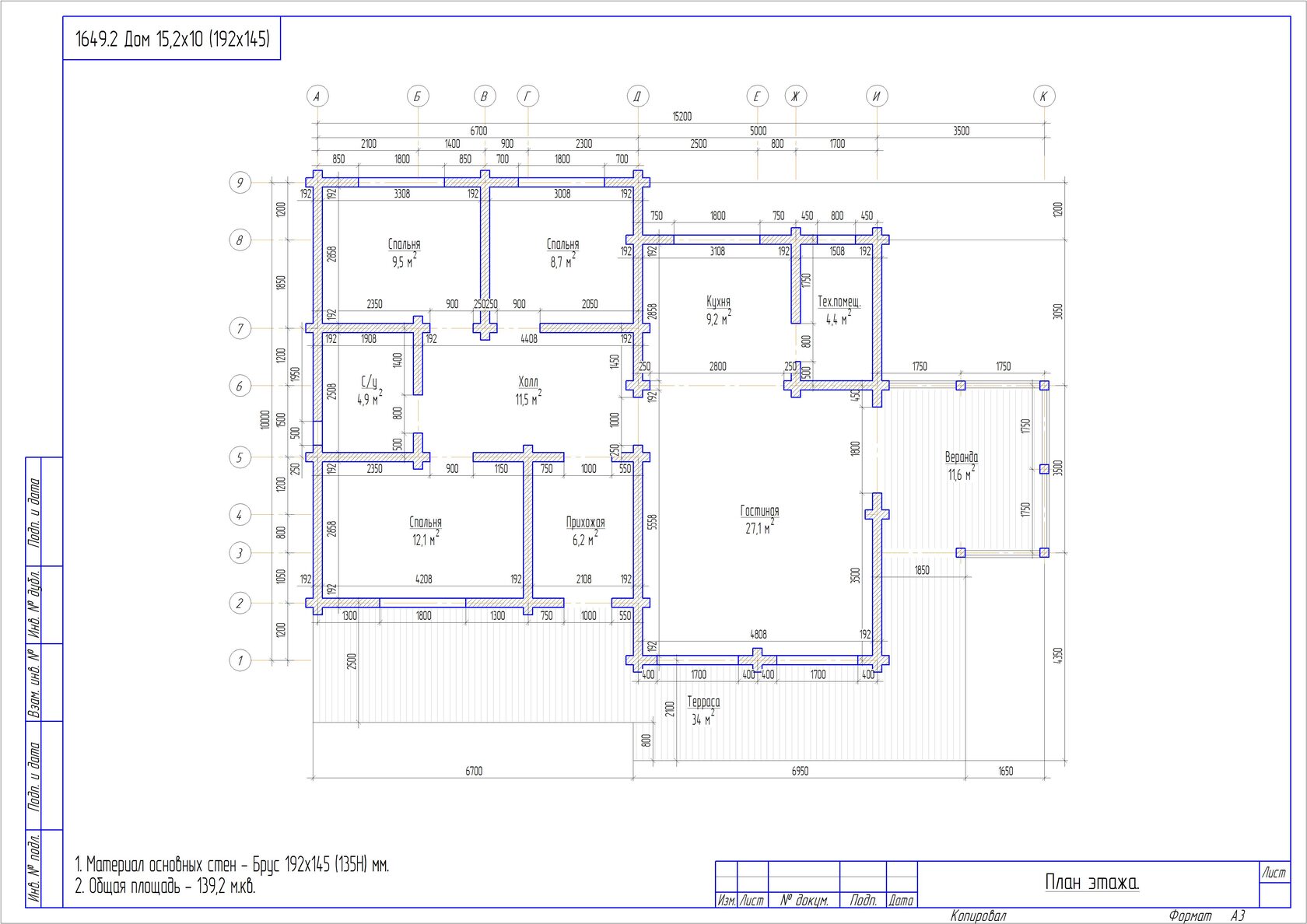
Одноэтажный дом из профилированного бруса. В стоимость входит:
«ПОД УСАДКУ»
1. Монолит: Выемка грунта механическим способом. Отсыпка песком и щебнем с трамбовкой послойно механическим способом. Гидроизоляция из геотекстиля под песок, мембрана профилированная PLANTER standard, Закладные трубы ПВХ под канализацию с греющим кабелем, установка арматурной обвязки (горячекатаная) арматура сталь периодического профиля класса А-Ш диаметром 8-12мм) с шагом 250мм, Заливка бетона Н300мм (крупность заполнения 40мм, класс В22.5 (М300). 2. Стены: монтаж стен оцилиндрованное бревно Диаметр 200-320мм или профилированный брус сечение 142х142 или 192х142мм монтаж бревна (бруса) осуществляется с помощью деревянных нагелей; укладка джутовой ленты между венцами монтаж лаг пола из бруса 200*100 мм через 600 мм; монтаж меж этажных балок перекрытия из бруса 200*100 мм через 600 мм метизы (скобы, саморезы, компенсаторы усадки)
3. Стропильная конструкция: стропильная конструкция из доски 150*50 мм скользящие опоры; стропила через 600 мм; обрешетка из доски 150*25 мм; контр обрешетка брусок 50/50; ветро-гидроизоляция; монтаж металлочерепицы Ламонтерра 0,45мм полиэстер. 4. Бесплатные услуги: проектная документация; (эскиз проект) организация строительной бригады; доставка материалов на объект; разгрузка материалов;
«Теплый контур»
1. Коммуникации:
Монтаж системы канализации с устройством септика (металлическая емкость) 10м3;
Монтаж системы водопровода с устройством скважины до 35 м;
Разводка электрики по точкам;
Ввод кабеля в дом от столба электричества;
Монтаж системы отопления теплым полом и биметаллическими радиаторами*;
Одноэтажный дом из оцилиндрованного бревна 240мм диаметра В стоимость входит:
«ПОД УСАДКУ»
1. Монолит: Выемка грунта механическим способом. Отсыпка песком и щебнем с трамбовкой послойно механическим способом. Гидроизоляция из геотекстиля под песок, мембрана профилированная PLANTER standard, Закладные трубы ПВХ под канализацию с греющим кабелем, установка арматурной обвязки (горячекатаная) арматура сталь периодического профиля класса А-Ш диаметром 8-12мм) с шагом 250мм, Заливка бетона Н300мм (крупность заполнения 40мм, класс В22.5 (М300). 2. Стены: монтаж стен оцилиндрованное бревно Диаметр 200-320мм или профилированный брус сечение 142х142 или 192х142мм монтаж бревна (бруса) осуществляется с помощью деревянных нагелей; укладка джутовой ленты между венцами монтаж лаг пола из бруса 200*100 мм через 600 мм; монтаж меж этажных балок перекрытия из бруса 200*100 мм через 600 мм метизы (скобы, саморезы, компенсаторы усадки)
3. Стропильная конструкция: стропильная конструкция из доски 150*50 мм скользящие опоры стропила через 600 мм; обрешетка из доски 150*25 мм; контр обрешетка брусок 50/50; ветро-гидроизоляция монтаж металлочерепицы Ламонтерра 0,45мм полиэстер 4. Бесплатные услуги: проектная документация; (эскиз проект) организация строительной бригады; доставка материалов на объект; разгрузка материалов;
«Теплый контур»
1. Коммуникации:
Монтаж системы канализации с устройством септика (металлическая емкость) 10м3;
Монтаж системы водопровода с устройством скважины до 35 м;
Разводка электрики по точкам;
Ввод кабеля в дом от столба электричества;
Монтаж системы отопления теплым полом и биметаллическими радиаторами*;
Одноэтажный дом из оцилиндрованного бревна 220мм диаметра В стоимость входит:
«ПОД УСАДКУ»
1. Монолит: Выемка грунта механическим способом. Отсыпка песком и щебнем с трамбовкой послойно механическим способом. Гидроизоляция из геотекстиля под песок, мембрана профилированная PLANTER standard, Закладные трубы ПВХ под канализацию с греющим кабелем, установка арматурной обвязки (горячекатаная) арматура сталь периодического профиля класса А-Ш диаметром 8-12мм) с шагом 250мм, Заливка бетона Н300мм (крупность заполнения 40мм, класс В22.5 (М300). 2. Стены: монтаж стен оцилиндрованное бревно Диаметр 200-320мм или профилированный брус сечение 142х142 или 192х142мм монтаж бревна (бруса) осуществляется с помощью деревянных нагелей; укладка джутовой ленты между венцами монтаж лаг пола из бруса 200*100 мм через 600 мм; монтаж меж этажных балок перекрытия из бруса 200*100 мм через 600 мм метизы (скобы, саморезы, компенсаторы усадки)
3. Стропильная конструкция: стропильная конструкция из доски 150*50 мм скользящие опоры стропила через 600 мм; обрешетка из доски 150*25 мм; контр обрешетка брусок 50/50; ветро-гидроизоляция монтаж металлочерепицы Ламонтерра 0,45мм полиэстер 4. Бесплатные услуги: проектная документация; (эскиз проект) организация строительной бригады; доставка материалов на объект; разгрузка материалов;
«Теплый контур»
1. Коммуникации:
Монтаж системы канализации с устройством септика (металлическая емкость) 10м3;
Монтаж системы водопровода с устройством скважины до 35 м;
Разводка электрики по точкам;
Ввод кабеля в дом от столба электричества;
Монтаж системы отопления теплым полом и биметаллическими радиаторами*;
Одноэтажный дом из оцилиндрованного бревна 240мм диаметра. Дом построен в д. Решетниково 2 в 2022г и второй дом построен КП "Альпийская долина" 2023г В стоимость входит:
«ПОД УСАДКУ»
1. Монолит: Выемка грунта механическим способом. Отсыпка песком и щебнем с трамбовкой послойно механическим способом. Гидроизоляция из геотекстиля под песок, мембрана профилированная PLANTER standard, Закладные трубы ПВХ под канализацию с греющим кабелем, установка арматурной обвязки (горячекатаная) арматура сталь периодического профиля класса А-Ш диаметром 8-12мм) с шагом 250мм, Заливка бетона Н300мм (крупность заполнения 40мм, класс В22.5 (М300). 2. Стены: монтаж стен оцилиндрованное бревно Диаметр 200-320мм или профилированный брус сечение 142х142 или 192х142мм монтаж бревна (бруса) осуществляется с помощью деревянных нагелей; укладка джутовой ленты между венцами монтаж лаг пола из бруса 200*100 мм через 600 мм; монтаж меж этажных балок перекрытия из бруса 200*100 мм через 600 мм метизы (скобы, саморезы, компенсаторы усадки)
3. Стропильная конструкция: стропильная конструкция из доски 150*50 мм скользящие опоры; стропила через 600 мм; обрешетка из доски 150*25 мм; контр обрешетка брусок 50/50; ветро-гидроизоляция; монтаж металлочерепицы Ламонтерра 0,45мм полиэстер. 4. Бесплатные услуги: проектная документация; (эскиз проект) организация строительной бригады; доставка материалов на объект; разгрузка материалов;
«Теплый контур»
1. Коммуникации:
Монтаж системы канализации с устройством септика (металлическая емкость) 10м3;
Монтаж системы водопровода с устройством скважины до 35 м;
Разводка электрики по точкам;
Ввод кабеля в дом от столба электричества;
Монтаж системы отопления теплым полом и биметаллическими радиаторами*;
Одноэтажный дом из оцилиндрованного бревна 240мм диаметра В стоимость входит:
«ПОД УСАДКУ»
1. Монолит: Выемка грунта механическим способом. Отсыпка песком и щебнем с трамбовкой послойно механическим способом. Гидроизоляция из геотекстиля под песок, мембрана профилированная PLANTER standard, Закладные трубы ПВХ под канализацию с греющим кабелем, установка арматурной обвязки (горячекатаная) арматура сталь периодического профиля класса А-Ш диаметром 8-12мм) с шагом 250мм, Заливка бетона Н300мм (крупность заполнения 40мм, класс В22.5 (М300). 2. Стены: монтаж стен оцилиндрованное бревно Диаметр 200-320мм или профилированный брус сечение 142х142 или 192х142мм монтаж бревна (бруса) осуществляется с помощью деревянных нагелей; укладка джутовой ленты между венцами монтаж лаг пола из бруса 200*100 мм через 600 мм; монтаж меж этажных балок перекрытия из бруса 200*100 мм через 600 мм метизы (скобы, саморезы, компенсаторы усадки)
3. Стропильная конструкция: стропильная конструкция из доски 150*50 мм скользящие опоры стропила через 600 мм; обрешетка из доски 150*25 мм; контр обрешетка брусок 50/50; ветро-гидроизоляция монтаж металлочерепицы Ламонтерра 0,45мм полиэстер 4. Бесплатные услуги: проектная документация; (эскиз проект) организация строительной бригады; доставка материалов на объект; разгрузка материалов;
«Теплый контур»
1. Коммуникации:
Монтаж системы канализации с устройством септика (металлическая емкость) 10м3;
Монтаж системы водопровода с устройством скважины до 35 м;
Разводка электрики по точкам;
Ввод кабеля в дом от столба электричества;
Монтаж системы отопления теплым полом и биметаллическими радиаторами*;
Одноэтажный дом с антресолью из оцилиндрованного бревна 240мм диаметра В стоимость входит:
«ПОД УСАДКУ»
1. Монолит: Выемка грунта механическим способом. Отсыпка песком и щебнем с трамбовкой послойно механическим способом. Гидроизоляция из геотекстиля под песок, мембрана профилированная PLANTER standard, Закладные трубы ПВХ под канализацию с греющим кабелем, установка арматурной обвязки (горячекатаная) арматура сталь периодического профиля класса А-Ш диаметром 8-12мм) с шагом 250мм, Заливка бетона Н300мм (крупность заполнения 40мм, класс В22.5 (М300). 2. Стены: монтаж стен оцилиндрованное бревно Диаметр 200-320мм или профилированный брус сечение 142х142 или 192х142мм монтаж бревна (бруса) осуществляется с помощью деревянных нагелей; укладка джутовой ленты между венцами монтаж лаг пола из бруса 200*100 мм через 600 мм; монтаж меж этажных балок перекрытия из бруса 200*100 мм через 600 мм метизы (скобы, саморезы, компенсаторы усадки)
3. Стропильная конструкция: стропильная конструкция из доски 150*50 мм скользящие опоры стропила через 600 мм; обрешетка из доски 150*25 мм; контр обрешетка брусок 50/50; ветро-гидроизоляция монтаж металлочерепицы Ламонтерра 0,45мм полиэстер 4. Бесплатные услуги: проектная документация; (эскиз проект) организация строительной бригады; доставка материалов на объект; разгрузка материалов;
«Теплый контур»
1. Коммуникации:
Монтаж системы канализации с устройством септика (металлическая емкость) 10м3;
Монтаж системы водопровода с устройством скважины до 35 м;
Разводка электрики по точкам;
Ввод кабеля в дом от столба электричества;
Монтаж системы отопления теплым полом и биметаллическими радиаторами*;
Одноэтажный дом из оцилиндрованного бревна 240мм диаметра. Дом построен в д. Решетниково 2 в 2022г и второй дом построен КП "Альпийская долина" 2023г В стоимость входит:
«ПОД УСАДКУ»
1. Монолит: Выемка грунта механическим способом. Отсыпка песком и щебнем с трамбовкой послойно механическим способом. Гидроизоляция из геотекстиля под песок, мембрана профилированная PLANTER standard, Закладные трубы ПВХ под канализацию с греющим кабелем, установка арматурной обвязки (горячекатаная) арматура сталь периодического профиля класса А-Ш диаметром 8-12мм) с шагом 250мм, Заливка бетона Н300мм (крупность заполнения 40мм, класс В22.5 (М300). 2. Стены: монтаж стен оцилиндрованное бревно Диаметр 200-320мм или профилированный брус сечение 142х142 или 192х142мм монтаж бревна (бруса) осуществляется с помощью деревянных нагелей; укладка джутовой ленты между венцами монтаж лаг пола из бруса 200*100 мм через 600 мм; монтаж меж этажных балок перекрытия из бруса 200*100 мм через 600 мм метизы (скобы, саморезы, компенсаторы усадки)
3. Стропильная конструкция: стропильная конструкция из доски 150*50 мм скользящие опоры стропила через 600 мм; обрешетка из доски 150*25 мм; контр обрешетка брусок 50/50; ветро-гидроизоляция монтаж металлочерепицы Ламонтерра 0,45мм полиэстер 4. Бесплатные услуги: проектная документация; (эскиз проект) организация строительной бригады; доставка материалов на объект; разгрузка материалов;
«Теплый контур»
1. Коммуникации:
Монтаж системы канализации с устройством септика (металлическая емкость) 10м3;
Монтаж системы водопровода с устройством скважины до 35 м;
Разводка электрики по точкам;
Ввод кабеля в дом от столба электричества;
Монтаж системы отопления теплым полом и биметаллическими радиаторами*;
Одноэтажный дом из оцилиндрованного бревна 240мм диаметра В стоимость входит:
«ПОД УСАДКУ»
1. Монолит: Выемка грунта механическим способом. Отсыпка песком и щебнем с трамбовкой послойно механическим способом. Гидроизоляция из геотекстиля под песок, мембрана профилированная PLANTER standard, Закладные трубы ПВХ под канализацию с греющим кабелем, установка арматурной обвязки (горячекатаная) арматура сталь периодического профиля класса А-Ш диаметром 8-12мм) с шагом 250мм, Заливка бетона Н300мм (крупность заполнения 40мм, класс В22.5 (М300). 2. Стены: монтаж стен оцилиндрованное бревно Диаметр 200-320мм или профилированный брус сечение 142х142 или 192х142мм монтаж бревна (бруса) осуществляется с помощью деревянных нагелей; укладка джутовой ленты между венцами монтаж лаг пола из бруса 200*100 мм через 600 мм; монтаж меж этажных балок перекрытия из бруса 200*100 мм через 600 мм метизы (скобы, саморезы, компенсаторы усадки)
3. Стропильная конструкция: стропильная конструкция из доски 150*50 мм скользящие опоры стропила через 600 мм; обрешетка из доски 150*25 мм; контр обрешетка брусок 50/50; ветро-гидроизоляция монтаж металлочерепицы Ламонтерра 0,45мм полиэстер 4. Бесплатные услуги: проектная документация; (эскиз проект) организация строительной бригады; доставка материалов на объект; разгрузка материалов;
«Теплый контур»
1. Коммуникации:
Монтаж системы канализации с устройством септика (металлическая емкость) 10м3;
Монтаж системы водопровода с устройством скважины до 35 м;
Разводка электрики по точкам;
Ввод кабеля в дом от столба электричества;
Монтаж системы отопления теплым полом и биметаллическими радиаторами*;
Одноэтажный дом из оцилиндрованного бревна 240мм диаметра В стоимость входит:
«ПОД УСАДКУ»
1. Монолит: Выемка грунта механическим способом. Отсыпка песком и щебнем с трамбовкой послойно механическим способом. Гидроизоляция из геотекстиля под песок, мембрана профилированная PLANTER standard, Закладные трубы ПВХ под канализацию с греющим кабелем, установка арматурной обвязки (горячекатаная) арматура сталь периодического профиля класса А-Ш диаметром 8-12мм) с шагом 250мм, Заливка бетона Н300мм (крупность заполнения 40мм, класс В22.5 (М300). 2. Стены: монтаж стен оцилиндрованное бревно Диаметр 200-320мм или профилированный брус сечение 142х142 или 192х142мм монтаж бревна (бруса) осуществляется с помощью деревянных нагелей; укладка джутовой ленты между венцами монтаж лаг пола из бруса 200*100 мм через 600 мм; монтаж меж этажных балок перекрытия из бруса 200*100 мм через 600 мм метизы (скобы, саморезы, компенсаторы усадки)
3. Стропильная конструкция: стропильная конструкция из доски 150*50 мм скользящие опоры стропила через 600 мм; обрешетка из доски 150*25 мм; контр обрешетка брусок 50/50; ветро-гидроизоляция монтаж металлочерепицы Ламонтерра 0,45мм полиэстер 4. Бесплатные услуги: проектная документация; (эскиз проект) организация строительной бригады; доставка материалов на объект; разгрузка материалов;
«Теплый контур»
1. Коммуникации:
Монтаж системы канализации с устройством септика (металлическая емкость) 10м3;
Монтаж системы водопровода с устройством скважины до 35 м;
Разводка электрики по точкам;
Ввод кабеля в дом от столба электричества;
Монтаж системы отопления теплым полом и биметаллическими радиаторами*;
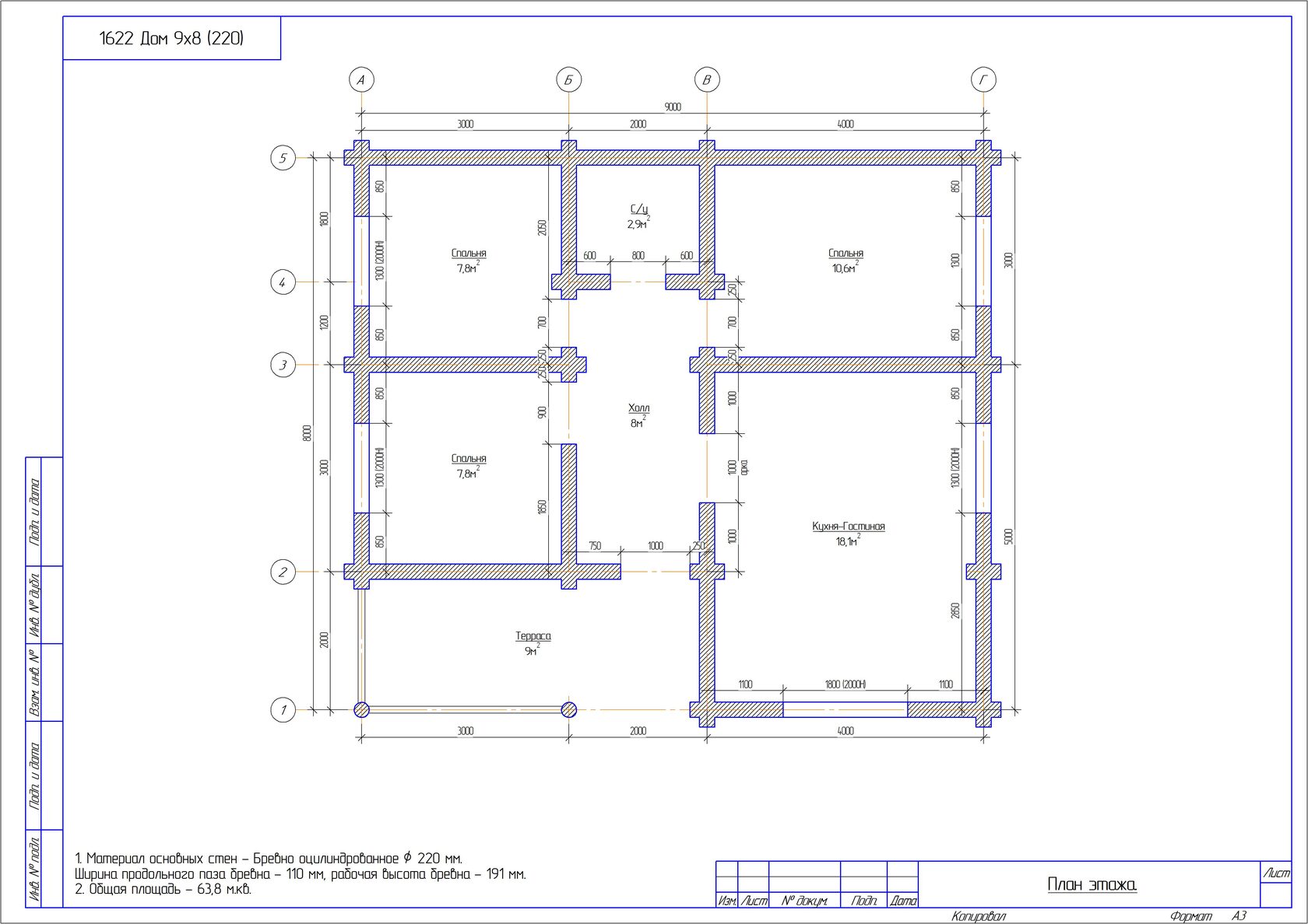
Двухэтажный дом из оцилиндрованного бревна 220мм диаметра В стоимость входит:
«ПОД УСАДКУ»
1. Монолит: Выемка грунта механическим способом. Отсыпка песком и щебнем с трамбовкой послойно механическим способом. Гидроизоляция из геотекстиля под песок, мембрана профилированная PLANTER standard, Закладные трубы ПВХ под канализацию с греющим кабелем, установка арматурной обвязки (горячекатаная) арматура сталь периодического профиля класса А-Ш диаметром 8-12мм) с шагом 250мм, Заливка бетона Н300мм (крупность заполнения 40мм, класс В22.5 (М300). 2. Стены: монтаж стен оцилиндрованное бревно Диаметр 200-320мм или профилированный брус сечение 142х142 или 192х142мм монтаж бревна (бруса) осуществляется с помощью деревянных нагелей; укладка джутовой ленты между венцами монтаж лаг пола из бруса 200*100 мм через 600 мм; монтаж меж этажных балок перекрытия из бруса 200*100 мм через 600 мм метизы (скобы, саморезы, компенсаторы усадки)
3. Стропильная конструкция: стропильная конструкция из доски 150*50 мм скользящие опоры стропила через 600 мм; обрешетка из доски 150*25 мм; контр обрешетка брусок 50/50; ветро-гидроизоляция монтаж металлочерепицы Ламонтерра 0,45мм полиэстер 4. Бесплатные услуги: проектная документация; (эскиз проект) организация строительной бригады; доставка материалов на объект; разгрузка материалов;
«Теплый контур»
1. Коммуникации:
Монтаж системы канализации с устройством септика (металлическая емкость) 10м3;
Монтаж системы водопровода с устройством скважины до 35 м;
Разводка электрики по точкам;
Ввод кабеля в дом от столба электричества;
Монтаж системы отопления теплым полом и биметаллическими радиаторами*;
Двухэтажный дом из оцилиндрованного бревна 220мм диаметра В стоимость входит:
«ПОД УСАДКУ»
1. Монолит: Выемка грунта механическим способом. Отсыпка песком и щебнем с трамбовкой послойно механическим способом. Гидроизоляция из геотекстиля под песок, мембрана профилированная PLANTER standard, Закладные трубы ПВХ под канализацию с греющим кабелем, установка арматурной обвязки (горячекатаная) арматура сталь периодического профиля класса А-Ш диаметром 8-12мм) с шагом 250мм, Заливка бетона Н300мм (крупность заполнения 40мм, класс В22.5 (М300). 2. Стены: монтаж стен оцилиндрованное бревно Диаметр 200-320мм или профилированный брус сечение 142х142 или 192х142мм монтаж бревна (бруса) осуществляется с помощью деревянных нагелей; укладка джутовой ленты между венцами монтаж лаг пола из бруса 200*100 мм через 600 мм; монтаж меж этажных балок перекрытия из бруса 200*100 мм через 600 мм метизы (скобы, саморезы, компенсаторы усадки)
3. Стропильная конструкция: стропильная конструкция из доски 150*50 мм скользящие опоры стропила через 600 мм; обрешетка из доски 150*25 мм; контр обрешетка брусок 50/50; ветро-гидроизоляция монтаж металлочерепицы Ламонтерра 0,45мм полиэстер 4. Бесплатные услуги: проектная документация; (эскиз проект) организация строительной бригады; доставка материалов на объект; разгрузка материалов;
«Теплый контур»
1. Коммуникации:
Монтаж системы канализации с устройством септика (металлическая емкость) 10м3;
Монтаж системы водопровода с устройством скважины до 35 м;
Разводка электрики по точкам;
Ввод кабеля в дом от столба электричества;
Монтаж системы отопления теплым полом и биметаллическими радиаторами*;
Двухэтажный дом из оцилиндрованного бревна 220мм диаметра В стоимость входит:
«ПОД УСАДКУ»
1. Монолит: Выемка грунта механическим способом. Отсыпка песком и щебнем с трамбовкой послойно механическим способом. Гидроизоляция из геотекстиля под песок, мембрана профилированная PLANTER standard, Закладные трубы ПВХ под канализацию с греющим кабелем, установка арматурной обвязки (горячекатаная) арматура сталь периодического профиля класса А-Ш диаметром 8-12мм) с шагом 250мм, Заливка бетона Н300мм (крупность заполнения 40мм, класс В22.5 (М300). 2. Стены: монтаж стен оцилиндрованное бревно Диаметр 200-320мм или профилированный брус сечение 142х142 или 192х142мм монтаж бревна (бруса) осуществляется с помощью деревянных нагелей; укладка джутовой ленты между венцами монтаж лаг пола из бруса 200*100 мм через 600 мм; монтаж меж этажных балок перекрытия из бруса 200*100 мм через 600 мм метизы (скобы, саморезы, компенсаторы усадки)
3. Стропильная конструкция: стропильная конструкция из доски 150*50 мм скользящие опоры стропила через 600 мм; обрешетка из доски 150*25 мм; контр обрешетка брусок 50/50; ветро-гидроизоляция монтаж металлочерепицы Ламонтерра 0,45мм полиэстер 4. Бесплатные услуги: проектная документация; (эскиз проект) организация строительной бригады; доставка материалов на объект; разгрузка материалов;
«Теплый контур»
1. Коммуникации:
Монтаж системы канализации с устройством септика (металлическая емкость) 10м3;
Монтаж системы водопровода с устройством скважины до 35 м;
Разводка электрики по точкам;
Ввод кабеля в дом от столба электричества;
Монтаж системы отопления теплым полом и биметаллическими радиаторами*;
Двухэтажный дом из оцилиндрованного бревна 240мм диаметра В стоимость входит:
«ПОД УСАДКУ»
1. Монолит: Выемка грунта механическим способом. Отсыпка песком и щебнем с трамбовкой послойно механическим способом. Гидроизоляция из геотекстиля под песок, мембрана профилированная PLANTER standard, Закладные трубы ПВХ под канализацию с греющим кабелем, установка арматурной обвязки (горячекатаная) арматура сталь периодического профиля класса А-Ш диаметром 8-12мм) с шагом 250мм, Заливка бетона Н300мм (крупность заполнения 40мм, класс В22.5 (М300). 2. Стены: монтаж стен оцилиндрованное бревно Диаметр 200-320мм или профилированный брус сечение 142х142 или 192х142мм монтаж бревна (бруса) осуществляется с помощью деревянных нагелей; укладка джутовой ленты между венцами монтаж лаг пола из бруса 200*100 мм через 600 мм; монтаж меж этажных балок перекрытия из бруса 200*100 мм через 600 мм метизы (скобы, саморезы, компенсаторы усадки)
3. Стропильная конструкция: стропильная конструкция из доски 150*50 мм скользящие опоры стропила через 600 мм; обрешетка из доски 150*25 мм; контр обрешетка брусок 50/50; ветро-гидроизоляция монтаж металлочерепицы Ламонтерра 0,45мм полиэстер 4. Бесплатные услуги: проектная документация; (эскиз проект) организация строительной бригады; доставка материалов на объект; разгрузка материалов;
«Теплый контур»
1. Коммуникации:
Монтаж системы канализации с устройством септика (металлическая емкость) 10м3;
Монтаж системы водопровода с устройством скважины до 35 м;
Разводка электрики по точкам;
Ввод кабеля в дом от столба электричества;
Монтаж системы отопления теплым полом и биметаллическими радиаторами*;
Двухэтажный дом-баня из оцилиндрованного бревна 220мм диаметра В стоимость входит:
«ПОД УСАДКУ»
1. Монолит: Выемка грунта механическим способом. Отсыпка песком и щебнем с трамбовкой послойно механическим способом. Гидроизоляция из геотекстиля под песок, мембрана профилированная PLANTER standard, Закладные трубы ПВХ под канализацию с греющим кабелем, установка арматурной обвязки (горячекатаная) арматура сталь периодического профиля класса А-Ш диаметром 8-12мм) с шагом 250мм, Заливка бетона Н300мм (крупность заполнения 40мм, класс В22.5 (М300). 2. Стены: монтаж стен оцилиндрованное бревно Диаметр 200-320мм или профилированный брус сечение 142х142 или 192х142мм монтаж бревна (бруса) осуществляется с помощью деревянных нагелей; укладка джутовой ленты между венцами монтаж лаг пола из бруса 200*100 мм через 600 мм; монтаж меж этажных балок перекрытия из бруса 200*100 мм через 600 мм метизы (скобы, саморезы, компенсаторы усадки)
3. Стропильная конструкция: стропильная конструкция из доски 150*50 мм скользящие опоры стропила через 600 мм; обрешетка из доски 150*25 мм; контр обрешетка брусок 50/50; ветро-гидроизоляция монтаж металлочерепицы Ламонтерра 0,45мм полиэстер 4. Бесплатные услуги: проектная документация; (эскиз проект) организация строительной бригады; доставка материалов на объект; разгрузка материалов;
«Теплый контур»
1. Коммуникации:
Монтаж системы канализации с устройством септика (металлическая емкость) 10м3;
Монтаж системы водопровода с устройством скважины до 35 м;
Разводка электрики по точкам;
Ввод кабеля в дом от столба электричества;
Монтаж системы отопления теплым полом и биметаллическими радиаторами*;
Одноэтажный дом-баня из профилированного бруса 192х142мм и оцилиндрованного бревна 220мм. Проект из бруса построен в 2018г, из бревна в 2023г В стоимость входит:
«ПОД УСАДКУ»
1. Монолит: Выемка грунта механическим способом. Отсыпка песком и щебнем с трамбовкой послойно механическим способом. Гидроизоляция из геотекстиля под песок, мембрана профилированная PLANTER standard, Закладные трубы ПВХ под канализацию с греющим кабелем, установка арматурной обвязки (горячекатаная) арматура сталь периодического профиля класса А-Ш диаметром 8-12мм) с шагом 250мм, Заливка бетона Н300мм (крупность заполнения 40мм, класс В22.5 (М300). 2. Стены: монтаж стен оцилиндрованное бревно Диаметр 200-320мм или профилированный брус сечение 142х142 или 192х142мм монтаж бревна (бруса) осуществляется с помощью деревянных нагелей; укладка джутовой ленты между венцами монтаж лаг пола из бруса 200*100 мм через 600 мм; монтаж меж этажных балок перекрытия из бруса 200*100 мм через 600 мм метизы (скобы, саморезы, компенсаторы усадки)
3. Стропильная конструкция: стропильная конструкция из доски 150*50 мм скользящие опоры стропила через 600 мм; обрешетка из доски 150*25 мм; контр обрешетка брусок 50/50; ветро-гидроизоляция монтаж металлочерепицы Ламонтерра 0,45мм полиэстер 4. Бесплатные услуги: проектная документация; (эскиз проект) организация строительной бригады; доставка материалов на объект; разгрузка материалов;
«Теплый контур»
1. Коммуникации:
Монтаж системы канализации с устройством септика (металлическая емкость) 10м3;
Монтаж системы водопровода с устройством скважины до 35 м;
Разводка электрики по точкам;
Ввод кабеля в дом от столба электричества;
Монтаж системы отопления теплым полом и биметаллическими радиаторами*;
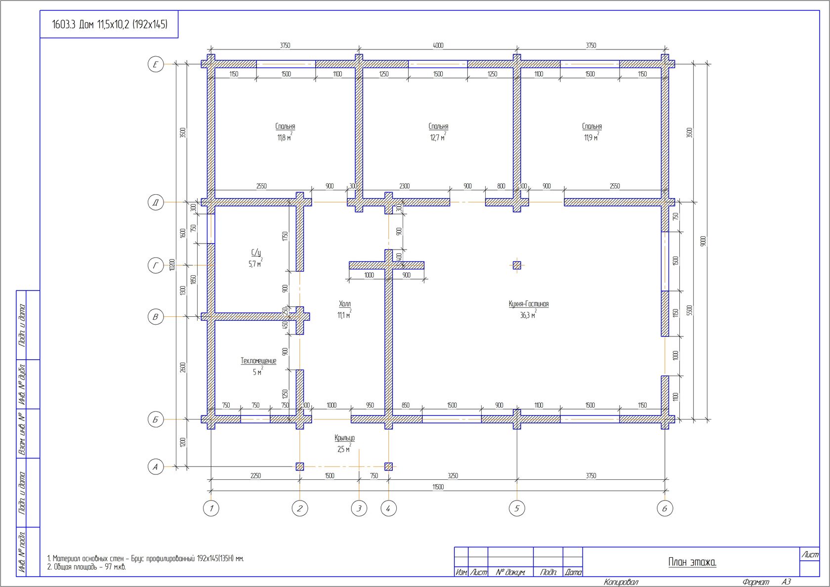
Двухэтажный дом из профилированного бруса 192х142мм В стоимость входит:
1. Монолит: Выемка грунта механическим способом. Отсыпка песком и щебнем с трамбовкой послойно механическим способом. Гидроизоляция из геотекстиля под песок, мембрана профилированная PLANTER standard, Закладные трубы ПВХ под канализацию с греющим кабелем, установка арматурной обвязки (горячекатаная) арматура сталь периодического профиля класса А-Ш диаметром 8-12мм) с шагом 250мм, Заливка бетона Н300мм (крупность заполнения 40мм, класс В22.5 (М300). 2. Стены: монтаж стен оцилиндрованное бревно Диаметр 200-320мм или профилированный брус сечение 142х142 или 192х142мм монтаж бревна (бруса) осуществляется с помощью деревянных нагелей; укладка джутовой ленты между венцами монтаж лаг пола из бруса 200*100 мм через 600 мм; монтаж меж этажных балок перекрытия из бруса 200*100 мм через 600 мм метизы (скобы, саморезы, компенсаторы усадки)
3. Стропильная конструкция: стропильная конструкция из доски 150*50 мм скользящие опоры стропила через 600 мм; обрешетка из доски 150*25 мм; контр обрешетка брусок 50/50; ветро-гидроизоляция монтаж металлочерепицы Ламонтерра 0,45мм полиэстер 4. Бесплатные услуги: проектная документация; (эскиз проект) организация строительной бригады; доставка материалов на объект; разгрузка материалов;
«Теплый контур»
1. Коммуникации:
Монтаж системы канализации с устройством септика (металлическая емкость) 10м3;
Монтаж системы водопровода с устройством скважины до 35 м;
Разводка электрики по точкам;
Ввод кабеля в дом от столба электричества;
Монтаж системы отопления теплым полом и биметаллическими радиаторами*;
Двухэтажный дом из оцилиндрованного бревна 220мм диаметра В стоимость входит:
«ПОД УСАДКУ»
1. Монолит: Выемка грунта механическим способом. Отсыпка песком и щебнем с трамбовкой послойно механическим способом. Гидроизоляция из геотекстиля под песок, мембрана профилированная PLANTER standard, Закладные трубы ПВХ под канализацию с греющим кабелем, установка арматурной обвязки (горячекатаная) арматура сталь периодического профиля класса А-Ш диаметром 8-12мм) с шагом 250мм, Заливка бетона Н300мм (крупность заполнения 40мм, класс В22.5 (М300). 2. Стены: монтаж стен оцилиндрованное бревно Диаметр 200-320мм или профилированный брус сечение 142х142 или 192х142мм монтаж бревна (бруса) осуществляется с помощью деревянных нагелей; укладка джутовой ленты между венцами монтаж лаг пола из бруса 200*100 мм через 600 мм; монтаж меж этажных балок перекрытия из бруса 200*100 мм через 600 мм метизы (скобы, саморезы, компенсаторы усадки)
3. Стропильная конструкция: стропильная конструкция из доски 150*50 мм скользящие опоры стропила через 600 мм; обрешетка из доски 150*25 мм; контр обрешетка брусок 50/50; ветро-гидроизоляция монтаж металлочерепицы Ламонтерра 0,45мм полиэстер 4. Бесплатные услуги: проектная документация; (эскиз проект) организация строительной бригады; доставка материалов на объект; разгрузка материалов;
«Теплый контур»
1. Коммуникации:
Монтаж системы канализации с устройством септика (металлическая емкость) 10м3;
Монтаж системы водопровода с устройством скважины до 35 м;
Разводка электрики по точкам;
Ввод кабеля в дом от столба электричества;
Монтаж системы отопления теплым полом и биметаллическими радиаторами*;
Двухэтажный дом из профилированного бруса 192х142мм В стоимость входит:
«ПОД УСАДКУ»
1. Монолит: Выемка грунта механическим способом. Отсыпка песком и щебнем с трамбовкой послойно механическим способом. Гидроизоляция из геотекстиля под песок, мембрана профилированная PLANTER standard, Закладные трубы ПВХ под канализацию с греющим кабелем, установка арматурной обвязки (горячекатаная) арматура сталь периодического профиля класса А-Ш диаметром 8-12мм) с шагом 250мм, Заливка бетона Н300мм (крупность заполнения 40мм, класс В22.5 (М300). 2. Стены: монтаж стен оцилиндрованное бревно Диаметр 200-320мм или профилированный брус сечение 142х142 или 192х142мм монтаж бревна (бруса) осуществляется с помощью деревянных нагелей; укладка джутовой ленты между венцами монтаж лаг пола из бруса 200*100 мм через 600 мм; монтаж меж этажных балок перекрытия из бруса 200*100 мм через 600 мм метизы (скобы, саморезы, компенсаторы усадки)
3. Стропильная конструкция: стропильная конструкция из доски 150*50 мм скользящие опоры стропила через 600 мм; обрешетка из доски 150*25 мм; контр обрешетка брусок 50/50; ветро-гидроизоляция монтаж металлочерепицы Ламонтерра 0,45мм полиэстер 4. Бесплатные услуги: проектная документация; (эскиз проект) организация строительной бригады; доставка материалов на объект; разгрузка материалов;
«Теплый контур»
1. Коммуникации:
Монтаж системы канализации с устройством септика (металлическая емкость) 10м3;
Монтаж системы водопровода с устройством скважины до 35 м;
Разводка электрики по точкам;
Ввод кабеля в дом от столба электричества;
Монтаж системы отопления теплым полом и биметаллическими радиаторами*;
Двухэтажный дом из оцилиндрованного бревна 260мм диаметра В стоимость входит:
«ПОД УСАДКУ»
1. Монолит: Выемка грунта механическим способом. Отсыпка песком и щебнем с трамбовкой послойно механическим способом. Гидроизоляция из геотекстиля под песок, мембрана профилированная PLANTER standard, Закладные трубы ПВХ под канализацию с греющим кабелем, установка арматурной обвязки (горячекатаная) арматура сталь периодического профиля класса А-Ш диаметром 8-12мм) с шагом 250мм, Заливка бетона Н300мм (крупность заполнения 40мм, класс В22.5 (М300). 2. Стены: монтаж стен оцилиндрованное бревно Диаметр 200-320мм или профилированный брус сечение 142х142 или 192х142мм монтаж бревна (бруса) осуществляется с помощью деревянных нагелей; укладка джутовой ленты между венцами монтаж лаг пола из бруса 200*100 мм через 600 мм; монтаж меж этажных балок перекрытия из бруса 200*100 мм через 600 мм метизы (скобы, саморезы, компенсаторы усадки)
3. Стропильная конструкция: стропильная конструкция из доски 150*50 мм скользящие опоры стропила через 600 мм; обрешетка из доски 150*25 мм; контр обрешетка брусок 50/50; ветро-гидроизоляция монтаж металлочерепицы Ламонтерра 0,45мм полиэстер 4. Бесплатные услуги: проектная документация; (эскиз проект) организация строительной бригады; доставка материалов на объект; разгрузка материалов;
«Теплый контур»
1. Коммуникации:
Монтаж системы канализации с устройством септика (металлическая емкость) 10м3;
Монтаж системы водопровода с устройством скважины до 35 м;
Разводка электрики по точкам;
Ввод кабеля в дом от столба электричества;
Монтаж системы отопления теплым полом и биметаллическими радиаторами*;
Двухэтажный дом из профилированного бруса 192х142мм В стоимость входит:
«ПОД УСАДКУ»
1. Монолит: Выемка грунта механическим способом. Отсыпка песком и щебнем с трамбовкой послойно механическим способом. Гидроизоляция из геотекстиля под песок, мембрана профилированная PLANTER standard, Закладные трубы ПВХ под канализацию с греющим кабелем, установка арматурной обвязки (горячекатаная) арматура сталь периодического профиля класса А-Ш диаметром 8-12мм) с шагом 250мм, Заливка бетона Н300мм (крупность заполнения 40мм, класс В22.5 (М300). 2. Стены: монтаж стен оцилиндрованное бревно Диаметр 200-320мм или профилированный брус сечение 142х142 или 192х142мм монтаж бревна (бруса) осуществляется с помощью деревянных нагелей; укладка джутовой ленты между венцами монтаж лаг пола из бруса 200*100 мм через 600 мм; монтаж меж этажных балок перекрытия из бруса 200*100 мм через 600 мм метизы (скобы, саморезы, компенсаторы усадки)
3. Стропильная конструкция: стропильная конструкция из доски 150*50 мм скользящие опоры стропила через 600 мм; обрешетка из доски 150*25 мм; контр обрешетка брусок 50/50; ветро-гидроизоляция монтаж металлочерепицы Ламонтерра 0,45мм полиэстер 4. Бесплатные услуги: проектная документация; (эскиз проект) организация строительной бригады; доставка материалов на объект; разгрузка материалов;
«Теплый контур»
1. Коммуникации:
Монтаж системы канализации с устройством септика (металлическая емкость) 10м3;
Монтаж системы водопровода с устройством скважины до 35 м;
Разводка электрики по точкам;
Ввод кабеля в дом от столба электричества;
Монтаж системы отопления теплым полом и биметаллическими радиаторами*;
Одноэтажный дом из профилированного бруса 192х142мм В стоимость входит:
«ПОД УСАДКУ»
1. Монолит: Выемка грунта механическим способом. Отсыпка песком и щебнем с трамбовкой послойно механическим способом. Гидроизоляция из геотекстиля под песок, мембрана профилированная PLANTER standard, Закладные трубы ПВХ под канализацию с греющим кабелем, установка арматурной обвязки (горячекатаная) арматура сталь периодического профиля класса А-Ш диаметром 8-12мм) с шагом 250мм, Заливка бетона Н300мм (крупность заполнения 40мм, класс В22.5 (М300). 2. Стены: монтаж стен оцилиндрованное бревно Диаметр 200-320мм или профилированный брус сечение 142х142 или 192х142мм монтаж бревна (бруса) осуществляется с помощью деревянных нагелей; укладка джутовой ленты между венцами монтаж лаг пола из бруса 200*100 мм через 600 мм; монтаж меж этажных балок перекрытия из бруса 200*100 мм через 600 мм метизы (скобы, саморезы, компенсаторы усадки)
3. Стропильная конструкция: стропильная конструкция из доски 150*50 мм скользящие опоры стропила через 600 мм; обрешетка из доски 150*25 мм; контр обрешетка брусок 50/50; ветро-гидроизоляция монтаж металлочерепицы Ламонтерра 0,45мм полиэстер 4. Бесплатные услуги: проектная документация; (эскиз проект) организация строительной бригады; доставка материалов на объект; разгрузка материалов;
«Теплый контур»
1. Коммуникации:
Монтаж системы канализации с устройством септика (металлическая емкость) 10м3;
Монтаж системы водопровода с устройством скважины до 35 м;
Разводка электрики по точкам;
Ввод кабеля в дом от столба электричества;
Монтаж системы отопления теплым полом и биметаллическими радиаторами*;
Двухэтажный дом из оцилиндрованного бревна 220мм диаметра В стоимость входит:
«ПОД УСАДКУ»
1. Монолит: Выемка грунта механическим способом. Отсыпка песком и щебнем с трамбовкой послойно механическим способом. Гидроизоляция из геотекстиля под песок, мембрана профилированная PLANTER standard, Закладные трубы ПВХ под канализацию с греющим кабелем, установка арматурной обвязки (горячекатаная) арматура сталь периодического профиля класса А-Ш диаметром 8-12мм) с шагом 250мм, Заливка бетона Н300мм (крупность заполнения 40мм, класс В22.5 (М300). 2. Стены: монтаж стен оцилиндрованное бревно Диаметр 200-320мм или профилированный брус сечение 142х142 или 192х142мм монтаж бревна (бруса) осуществляется с помощью деревянных нагелей; укладка джутовой ленты между венцами монтаж лаг пола из бруса 200*100 мм через 600 мм; монтаж меж этажных балок перекрытия из бруса 200*100 мм через 600 мм метизы (скобы, саморезы, компенсаторы усадки)
3. Стропильная конструкция: стропильная конструкция из доски 150*50 мм скользящие опоры стропила через 600 мм; обрешетка из доски 150*25 мм; контр обрешетка брусок 50/50; ветро-гидроизоляция монтаж металлочерепицы Ламонтерра 0,45мм полиэстер 4. Бесплатные услуги: проектная документация; (эскиз проект) организация строительной бригады; доставка материалов на объект; разгрузка материалов;
«Теплый контур»
1. Коммуникации:
Монтаж системы канализации с устройством септика (металлическая емкость) 10м3;
Монтаж системы водопровода с устройством скважины до 35 м;
Разводка электрики по точкам;
Ввод кабеля в дом от столба электричества;
Монтаж системы отопления теплым полом и биметаллическими радиаторами*;
Одноэтажный дом из оцилиндрованного бревна 240мм. Дом построен в д. Якуши октябрь 2023г В стоимость входит:
«ПОД УСАДКУ»
1. Монолит: Выемка грунта механическим способом. Отсыпка песком и щебнем с трамбовкой послойно механическим способом. Гидроизоляция из геотекстиля под песок, мембрана профилированная PLANTER standard, Закладные трубы ПВХ под канализацию с греющим кабелем, установка арматурной обвязки (горячекатаная) арматура сталь периодического профиля класса А-Ш диаметром 8-12мм) с шагом 250мм, Заливка бетона Н300мм (крупность заполнения 40мм, класс В22.5 (М300). 2. Стены: монтаж стен оцилиндрованное бревно Диаметр 200-320мм или профилированный брус сечение 142х142 или 192х142мм монтаж бревна (бруса) осуществляется с помощью деревянных нагелей; укладка джутовой ленты между венцами монтаж лаг пола из бруса 200*100 мм через 600 мм; монтаж меж этажных балок перекрытия из бруса 200*100 мм через 600 мм метизы (скобы, саморезы, компенсаторы усадки)
3. Стропильная конструкция: стропильная конструкция из доски 150*50 мм скользящие опоры стропила через 600 мм; обрешетка из доски 150*25 мм; контр обрешетка брусок 50/50; ветро-гидроизоляция монтаж металлочерепицы Ламонтерра 0,45мм полиэстер 4. Бесплатные услуги: проектная документация; (эскиз проект) организация строительной бригады; доставка материалов на объект; разгрузка материалов;
«Теплый контур»
1. Коммуникации:
Монтаж системы канализации с устройством септика (металлическая емкость) 10м3;
Монтаж системы водопровода с устройством скважины до 35 м;
Разводка электрики по точкам;
Ввод кабеля в дом от столба электричества;
Монтаж системы отопления теплым полом и биметаллическими радиаторами*;
Двухэтажный дом из оцилиндрованного бревна 220мм диаметра В стоимость входит:
«ПОД УСАДКУ»
1. Монолит: Выемка грунта механическим способом. Отсыпка песком и щебнем с трамбовкой послойно механическим способом. Гидроизоляция из геотекстиля под песок, мембрана профилированная PLANTER standard, Закладные трубы ПВХ под канализацию с греющим кабелем, установка арматурной обвязки (горячекатаная) арматура сталь периодического профиля класса А-Ш диаметром 8-12мм) с шагом 250мм, Заливка бетона Н300мм (крупность заполнения 40мм, класс В22.5 (М300). 2. Стены: монтаж стен оцилиндрованное бревно Диаметр 200-320мм или профилированный брус сечение 142х142 или 192х142мм монтаж бревна (бруса) осуществляется с помощью деревянных нагелей; укладка джутовой ленты между венцами монтаж лаг пола из бруса 200*100 мм через 600 мм; монтаж меж этажных балок перекрытия из бруса 200*100 мм через 600 мм метизы (скобы, саморезы, компенсаторы усадки)
3. Стропильная конструкция: стропильная конструкция из доски 150*50 мм скользящие опоры стропила через 600 мм; обрешетка из доски 150*25 мм; контр обрешетка брусок 50/50; ветро-гидроизоляция монтаж металлочерепицы Ламонтерра 0,45мм полиэстер 4. Бесплатные услуги: проектная документация; (эскиз проект) организация строительной бригады; доставка материалов на объект; разгрузка материалов;
«Теплый контур»
1. Коммуникации:
Монтаж системы канализации с устройством септика (металлическая емкость) 10м3;
Монтаж системы водопровода с устройством скважины до 35 м;
Разводка электрики по точкам;
Ввод кабеля в дом от столба электричества;
Монтаж системы отопления теплым полом и биметаллическими радиаторами*;
Одноэтажный дом из профилированного бруса 192х142мм В стоимость входит:
«ПОД УСАДКУ»
1. Монолит: Выемка грунта механическим способом. Отсыпка песком и щебнем с трамбовкой послойно механическим способом. Гидроизоляция из геотекстиля под песок, мембрана профилированная PLANTER standard, Закладные трубы ПВХ под канализацию с греющим кабелем, установка арматурной обвязки (горячекатаная) арматура сталь периодического профиля класса А-Ш диаметром 8-12мм) с шагом 250мм, Заливка бетона Н300мм (крупность заполнения 40мм, класс В22.5 (М300). 2. Стены: монтаж стен оцилиндрованное бревно Диаметр 200-320мм или профилированный брус сечение 142х142 или 192х142мм монтаж бревна (бруса) осуществляется с помощью деревянных нагелей; укладка джутовой ленты между венцами монтаж лаг пола из бруса 200*100 мм через 600 мм; монтаж меж этажных балок перекрытия из бруса 200*100 мм через 600 мм метизы (скобы, саморезы, компенсаторы усадки)
3. Стропильная конструкция: стропильная конструкция из доски 150*50 мм скользящие опоры стропила через 600 мм; обрешетка из доски 150*25 мм; контр обрешетка брусок 50/50; ветро-гидроизоляция монтаж металлочерепицы Ламонтерра 0,45мм полиэстер 4. Бесплатные услуги: проектная документация; (эскиз проект) организация строительной бригады; доставка материалов на объект; разгрузка материалов;
«Теплый контур»
1. Коммуникации:
Монтаж системы канализации с устройством септика (металлическая емкость) 10м3;
Монтаж системы водопровода с устройством скважины до 35 м;
Разводка электрики по точкам;
Ввод кабеля в дом от столба электричества;
Монтаж системы отопления теплым полом и биметаллическими радиаторами*;
Двухэтажный дом из оцилиндрованного бревна 220мм диаметра В стоимость входит:
«ПОД УСАДКУ»
1. Монолит: Выемка грунта механическим способом. Отсыпка песком и щебнем с трамбовкой послойно механическим способом. Гидроизоляция из геотекстиля под песок, мембрана профилированная PLANTER standard, Закладные трубы ПВХ под канализацию с греющим кабелем, установка арматурной обвязки (горячекатаная) арматура сталь периодического профиля класса А-Ш диаметром 8-12мм) с шагом 250мм, Заливка бетона Н300мм (крупность заполнения 40мм, класс В22.5 (М300). 2. Стены: монтаж стен оцилиндрованное бревно Диаметр 200-320мм или профилированный брус сечение 142х142 или 192х142мм монтаж бревна (бруса) осуществляется с помощью деревянных нагелей; укладка джутовой ленты между венцами монтаж лаг пола из бруса 200*100 мм через 600 мм; монтаж меж этажных балок перекрытия из бруса 200*100 мм через 600 мм метизы (скобы, саморезы, компенсаторы усадки)
3. Стропильная конструкция: стропильная конструкция из доски 150*50 мм скользящие опоры стропила через 600 мм; обрешетка из доски 150*25 мм; контр обрешетка брусок 50/50; ветро-гидроизоляция монтаж металлочерепицы Ламонтерра 0,45мм полиэстер 4. Бесплатные услуги: проектная документация; (эскиз проект) организация строительной бригады; доставка материалов на объект; разгрузка материалов;
«Теплый контур»
1. Коммуникации:
Монтаж системы канализации с устройством септика (металлическая емкость) 10м3;
Монтаж системы водопровода с устройством скважины до 35 м;
Разводка электрики по точкам;
Ввод кабеля в дом от столба электричества;
Монтаж системы отопления теплым полом и биметаллическими радиаторами*;
Двухэтажный дом из профилированного бруса 192х142мм В стоимость входит:
«ПОД УСАДКУ»
1. Монолит: Выемка грунта механическим способом. Отсыпка песком и щебнем с трамбовкой послойно механическим способом. Гидроизоляция из геотекстиля под песок, мембрана профилированная PLANTER standard, Закладные трубы ПВХ под канализацию с греющим кабелем, установка арматурной обвязки (горячекатаная) арматура сталь периодического профиля класса А-Ш диаметром 8-12мм) с шагом 250мм, Заливка бетона Н300мм (крупность заполнения 40мм, класс В22.5 (М300). 2. Стены: монтаж стен оцилиндрованное бревно Диаметр 200-320мм или профилированный брус сечение 142х142 или 192х142мм монтаж бревна (бруса) осуществляется с помощью деревянных нагелей; укладка джутовой ленты между венцами монтаж лаг пола из бруса 200*100 мм через 600 мм; монтаж меж этажных балок перекрытия из бруса 200*100 мм через 600 мм метизы (скобы, саморезы, компенсаторы усадки)
3. Стропильная конструкция: стропильная конструкция из доски 150*50 мм скользящие опоры стропила через 600 мм; обрешетка из доски 150*25 мм; контр обрешетка брусок 50/50; ветро-гидроизоляция монтаж металлочерепицы Ламонтерра 0,45мм полиэстер 4. Бесплатные услуги: проектная документация; (эскиз проект) организация строительной бригады; доставка материалов на объект; разгрузка материалов;
«Теплый контур»
1. Коммуникации:
Монтаж системы канализации с устройством септика (металлическая емкость) 10м3;
Монтаж системы водопровода с устройством скважины до 35 м;
Разводка электрики по точкам;
Ввод кабеля в дом от столба электричества;
Монтаж системы отопления теплым полом и биметаллическими радиаторами*;
Двухэтажный дом из оцилиндрованного бревна 220мм диаметра В стоимость входит:
«ПОД УСАДКУ»
1. Монолит: Выемка грунта механическим способом. Отсыпка песком и щебнем с трамбовкой послойно механическим способом. Гидроизоляция из геотекстиля под песок, мембрана профилированная PLANTER standard, Закладные трубы ПВХ под канализацию с греющим кабелем, установка арматурной обвязки (горячекатаная) арматура сталь периодического профиля класса А-Ш диаметром 8-12мм) с шагом 250мм, Заливка бетона Н300мм (крупность заполнения 40мм, класс В22.5 (М300). 2. Стены: монтаж стен оцилиндрованное бревно Диаметр 200-320мм или профилированный брус сечение 142х142 или 192х142мм монтаж бревна (бруса) осуществляется с помощью деревянных нагелей; укладка джутовой ленты между венцами монтаж лаг пола из бруса 200*100 мм через 600 мм; монтаж меж этажных балок перекрытия из бруса 200*100 мм через 600 мм метизы (скобы, саморезы, компенсаторы усадки)
3. Стропильная конструкция: стропильная конструкция из доски 150*50 мм скользящие опоры стропила через 600 мм; обрешетка из доски 150*25 мм; контр обрешетка брусок 50/50; ветро-гидроизоляция монтаж металлочерепицы Ламонтерра 0,45мм полиэстер 4. Бесплатные услуги: проектная документация; (эскиз проект) организация строительной бригады; доставка материалов на объект; разгрузка материалов;
«Теплый контур»
1. Коммуникации:
Монтаж системы канализации с устройством септика (металлическая емкость) 10м3;
Монтаж системы водопровода с устройством скважины до 35 м;
Разводка электрики по точкам;
Ввод кабеля в дом от столба электричества;
Монтаж системы отопления теплым полом и биметаллическими радиаторами*;
Двухэтажный дом из оцилиндрованного бревна 260мм диаметра В стоимость входит:
«ПОД УСАДКУ»
1. Монолит: Выемка грунта механическим способом. Отсыпка песком и щебнем с трамбовкой послойно механическим способом. Гидроизоляция из геотекстиля под песок, мембрана профилированная PLANTER standard, Закладные трубы ПВХ под канализацию с греющим кабелем, установка арматурной обвязки (горячекатаная) арматура сталь периодического профиля класса А-Ш диаметром 8-12мм) с шагом 250мм, Заливка бетона Н300мм (крупность заполнения 40мм, класс В22.5 (М300). 2. Стены: монтаж стен оцилиндрованное бревно Диаметр 200-320мм или профилированный брус сечение 142х142 или 192х142мм монтаж бревна (бруса) осуществляется с помощью деревянных нагелей; укладка джутовой ленты между венцами монтаж лаг пола из бруса 200*100 мм через 600 мм; монтаж меж этажных балок перекрытия из бруса 200*100 мм через 600 мм метизы (скобы, саморезы, компенсаторы усадки)
3. Стропильная конструкция: стропильная конструкция из доски 150*50 мм скользящие опоры стропила через 600 мм; обрешетка из доски 150*25 мм; контр обрешетка брусок 50/50; ветро-гидроизоляция монтаж металлочерепицы Ламонтерра 0,45мм полиэстер 4. Бесплатные услуги: проектная документация; (эскиз проект) организация строительной бригады; доставка материалов на объект; разгрузка материалов;
«Теплый контур»
1. Коммуникации:
Монтаж системы канализации с устройством септика (металлическая емкость) 10м3;
Монтаж системы водопровода с устройством скважины до 35 м;
Разводка электрики по точкам;
Ввод кабеля в дом от столба электричества;
Монтаж системы отопления теплым полом и биметаллическими радиаторами*;
Двухэтажный дом из оцилиндрованного бревна 240мм диаметра В стоимость входит:
«ПОД УСАДКУ»
1. Монолит: Выемка грунта механическим способом. Отсыпка песком и щебнем с трамбовкой послойно механическим способом. Гидроизоляция из геотекстиля под песок, мембрана профилированная PLANTER standard, Закладные трубы ПВХ под канализацию с греющим кабелем, установка арматурной обвязки (горячекатаная) арматура сталь периодического профиля класса А-Ш диаметром 8-12мм) с шагом 250мм, Заливка бетона Н300мм (крупность заполнения 40мм, класс В22.5 (М300). 2. Стены: монтаж стен оцилиндрованное бревно Диаметр 200-320мм или профилированный брус сечение 142х142 или 192х142мм монтаж бревна (бруса) осуществляется с помощью деревянных нагелей; укладка джутовой ленты между венцами монтаж лаг пола из бруса 200*100 мм через 600 мм; монтаж меж этажных балок перекрытия из бруса 200*100 мм через 600 мм метизы (скобы, саморезы, компенсаторы усадки)
3. Стропильная конструкция: стропильная конструкция из доски 150*50 мм скользящие опоры стропила через 600 мм; обрешетка из доски 150*25 мм; контр обрешетка брусок 50/50; ветро-гидроизоляция монтаж металлочерепицы Ламонтерра 0,45мм полиэстер 4. Бесплатные услуги: проектная документация; (эскиз проект) организация строительной бригады; доставка материалов на объект; разгрузка материалов;
«Теплый контур»
1. Коммуникации:
Монтаж системы канализации с устройством септика (металлическая емкость) 10м3;
Монтаж системы водопровода с устройством скважины до 35 м;
Разводка электрики по точкам;
Ввод кабеля в дом от столба электричества;
Монтаж системы отопления теплым полом и биметаллическими радиаторами*;
Двухэтажный дом из оцилиндрованного бревна 240мм диаметра В стоимость входит:
«ПОД УСАДКУ»
1. Монолит: Выемка грунта механическим способом. Отсыпка песком и щебнем с трамбовкой послойно механическим способом. Гидроизоляция из геотекстиля под песок, мембрана профилированная PLANTER standard, Закладные трубы ПВХ под канализацию с греющим кабелем, установка арматурной обвязки (горячекатаная) арматура сталь периодического профиля класса А-Ш диаметром 8-12мм) с шагом 250мм, Заливка бетона Н300мм (крупность заполнения 40мм, класс В22.5 (М300). 2. Стены: монтаж стен оцилиндрованное бревно Диаметр 200-320мм или профилированный брус сечение 142х142 или 192х142мм монтаж бревна (бруса) осуществляется с помощью деревянных нагелей; укладка джутовой ленты между венцами монтаж лаг пола из бруса 200*100 мм через 600 мм; монтаж меж этажных балок перекрытия из бруса 200*100 мм через 600 мм метизы (скобы, саморезы, компенсаторы усадки)
3. Стропильная конструкция: стропильная конструкция из доски 150*50 мм скользящие опоры стропила через 600 мм; обрешетка из доски 150*25 мм; контр обрешетка брусок 50/50; ветро-гидроизоляция монтаж металлочерепицы Ламонтерра 0,45мм полиэстер 4. Бесплатные услуги: проектная документация; (эскиз проект) организация строительной бригады; доставка материалов на объект; разгрузка материалов;
«Теплый контур»
1. Коммуникации:
Монтаж системы канализации с устройством септика (металлическая емкость) 10м3;
Монтаж системы водопровода с устройством скважины до 35 м;
Разводка электрики по точкам;
Ввод кабеля в дом от столба электричества;
Монтаж системы отопления теплым полом и биметаллическими радиаторами*;
Двухэтажный дом из оцилиндрованного бревна 240мм диаметра В стоимость входит:
«ПОД УСАДКУ»
1. Монолит: Выемка грунта механическим способом. Отсыпка песком и щебнем с трамбовкой послойно механическим способом. Гидроизоляция из геотекстиля под песок, мембрана профилированная PLANTER standard, Закладные трубы ПВХ под канализацию с греющим кабелем, установка арматурной обвязки (горячекатаная) арматура сталь периодического профиля класса А-Ш диаметром 8-12мм) с шагом 250мм, Заливка бетона Н300мм (крупность заполнения 40мм, класс В22.5 (М300). 2. Стены: монтаж стен оцилиндрованное бревно Диаметр 200-320мм или профилированный брус сечение 142х142 или 192х142мм монтаж бревна (бруса) осуществляется с помощью деревянных нагелей; укладка джутовой ленты между венцами монтаж лаг пола из бруса 200*100 мм через 600 мм; монтаж меж этажных балок перекрытия из бруса 200*100 мм через 600 мм метизы (скобы, саморезы, компенсаторы усадки)
3. Стропильная конструкция: стропильная конструкция из доски 150*50 мм скользящие опоры стропила через 600 мм; обрешетка из доски 150*25 мм; контр обрешетка брусок 50/50; ветро-гидроизоляция монтаж металлочерепицы Ламонтерра 0,45мм полиэстер 4. Бесплатные услуги: проектная документация; (эскиз проект) организация строительной бригады; доставка материалов на объект; разгрузка материалов;
«Теплый контур»
1. Коммуникации:
Монтаж системы канализации с устройством септика (металлическая емкость) 10м3;
Монтаж системы водопровода с устройством скважины до 35 м;
Разводка электрики по точкам;
Ввод кабеля в дом от столба электричества;
Монтаж системы отопления теплым полом и биметаллическими радиаторами*;
Двухэтажный дом из оцилиндрованного бревна 260мм диаметра В стоимость входит:
«ПОД УСАДКУ»
1. Монолит: Выемка грунта механическим способом. Отсыпка песком и щебнем с трамбовкой послойно механическим способом. Гидроизоляция из геотекстиля под песок, мембрана профилированная PLANTER standard, Закладные трубы ПВХ под канализацию с греющим кабелем, установка арматурной обвязки (горячекатаная) арматура сталь периодического профиля класса А-Ш диаметром 8-12мм) с шагом 250мм, Заливка бетона Н300мм (крупность заполнения 40мм, класс В22.5 (М300). 2. Стены: монтаж стен оцилиндрованное бревно Диаметр 200-320мм или профилированный брус сечение 142х142 или 192х142мм монтаж бревна (бруса) осуществляется с помощью деревянных нагелей; укладка джутовой ленты между венцами монтаж лаг пола из бруса 200*100 мм через 600 мм; монтаж меж этажных балок перекрытия из бруса 200*100 мм через 600 мм метизы (скобы, саморезы, компенсаторы усадки)
3. Стропильная конструкция: стропильная конструкция из доски 150*50 мм скользящие опоры стропила через 600 мм; обрешетка из доски 150*25 мм; контр обрешетка брусок 50/50; ветро-гидроизоляция монтаж металлочерепицы Ламонтерра 0,45мм полиэстер 4. Бесплатные услуги: проектная документация; (эскиз проект) организация строительной бригады; доставка материалов на объект; разгрузка материалов;
«Теплый контур»
1. Коммуникации:
Монтаж системы канализации с устройством септика (металлическая емкость) 10м3;
Монтаж системы водопровода с устройством скважины до 35 м;
Разводка электрики по точкам;
Ввод кабеля в дом от столба электричества;
Монтаж системы отопления теплым полом и биметаллическими радиаторами*;
Двухэтажный дом из оцилиндрованного бревна 240мм диаметра В стоимость входит:
«ПОД УСАДКУ»
1. Монолит: Выемка грунта механическим способом. Отсыпка песком и щебнем с трамбовкой послойно механическим способом. Гидроизоляция из геотекстиля под песок, мембрана профилированная PLANTER standard, Закладные трубы ПВХ под канализацию с греющим кабелем, установка арматурной обвязки (горячекатаная) арматура сталь периодического профиля класса А-Ш диаметром 8-12мм) с шагом 250мм, Заливка бетона Н300мм (крупность заполнения 40мм, класс В22.5 (М300). 2. Стены: монтаж стен оцилиндрованное бревно Диаметр 200-320мм или профилированный брус сечение 142х142 или 192х142мм монтаж бревна (бруса) осуществляется с помощью деревянных нагелей; укладка джутовой ленты между венцами монтаж лаг пола из бруса 200*100 мм через 600 мм; монтаж меж этажных балок перекрытия из бруса 200*100 мм через 600 мм метизы (скобы, саморезы, компенсаторы усадки)
3. Стропильная конструкция: стропильная конструкция из доски 150*50 мм скользящие опоры стропила через 600 мм; обрешетка из доски 150*25 мм; контр обрешетка брусок 50/50; ветро-гидроизоляция монтаж металлочерепицы Ламонтерра 0,45мм полиэстер 4. Бесплатные услуги: проектная документация; (эскиз проект) организация строительной бригады; доставка материалов на объект; разгрузка материалов;
«Теплый контур»
1. Коммуникации:
Монтаж системы канализации с устройством септика (металлическая емкость) 10м3;
Монтаж системы водопровода с устройством скважины до 35 м;
Разводка электрики по точкам;
Ввод кабеля в дом от столба электричества;
Монтаж системы отопления теплым полом и биметаллическими радиаторами*;
Двухэтажный дом из оцилиндрованного бревна 240мм диаметра В стоимость входит:
«ПОД УСАДКУ»
1. Монолит: Выемка грунта механическим способом. Отсыпка песком и щебнем с трамбовкой послойно механическим способом. Гидроизоляция из геотекстиля под песок, мембрана профилированная PLANTER standard, Закладные трубы ПВХ под канализацию с греющим кабелем, установка арматурной обвязки (горячекатаная) арматура сталь периодического профиля класса А-Ш диаметром 8-12мм) с шагом 250мм, Заливка бетона Н300мм (крупность заполнения 40мм, класс В22.5 (М300). 2. Стены: монтаж стен оцилиндрованное бревно Диаметр 200-320мм или профилированный брус сечение 142х142 или 192х142мм монтаж бревна (бруса) осуществляется с помощью деревянных нагелей; укладка джутовой ленты между венцами монтаж лаг пола из бруса 200*100 мм через 600 мм; монтаж меж этажных балок перекрытия из бруса 200*100 мм через 600 мм метизы (скобы, саморезы, компенсаторы усадки)
3. Стропильная конструкция: стропильная конструкция из доски 150*50 мм скользящие опоры стропила через 600 мм; обрешетка из доски 150*25 мм; контр обрешетка брусок 50/50; ветро-гидроизоляция монтаж металлочерепицы Ламонтерра 0,45мм полиэстер 4. Бесплатные услуги: проектная документация; (эскиз проект) организация строительной бригады; доставка материалов на объект; разгрузка материалов;
«Теплый контур»
1. Коммуникации:
Монтаж системы канализации с устройством септика (металлическая емкость) 10м3;
Монтаж системы водопровода с устройством скважины до 35 м;
Разводка электрики по точкам;
Ввод кабеля в дом от столба электричества;
Монтаж системы отопления теплым полом и биметаллическими радиаторами*;
Двухэтажный дом из профилированного бруса 192х142мм В стоимость входит:
«ПОД УСАДКУ»
1. Монолит: Выемка грунта механическим способом. Отсыпка песком и щебнем с трамбовкой послойно механическим способом. Гидроизоляция из геотекстиля под песок, мембрана профилированная PLANTER standard, Закладные трубы ПВХ под канализацию с греющим кабелем, установка арматурной обвязки (горячекатаная) арматура сталь периодического профиля класса А-Ш диаметром 8-12мм) с шагом 250мм, Заливка бетона Н300мм (крупность заполнения 40мм, класс В22.5 (М300). 2. Стены: монтаж стен оцилиндрованное бревно Диаметр 200-320мм или профилированный брус сечение 142х142 или 192х142мм монтаж бревна (бруса) осуществляется с помощью деревянных нагелей; укладка джутовой ленты между венцами монтаж лаг пола из бруса 200*100 мм через 600 мм; монтаж меж этажных балок перекрытия из бруса 200*100 мм через 600 мм метизы (скобы, саморезы, компенсаторы усадки)
3. Стропильная конструкция: стропильная конструкция из доски 150*50 мм скользящие опоры стропила через 600 мм; обрешетка из доски 150*25 мм; контр обрешетка брусок 50/50; ветро-гидроизоляция монтаж металлочерепицы Ламонтерра 0,45мм полиэстер 4. Бесплатные услуги: проектная документация; (эскиз проект) организация строительной бригады; доставка материалов на объект; разгрузка материалов;
«Теплый контур»
1. Коммуникации:
Монтаж системы канализации с устройством септика (металлическая емкость) 10м3;
Монтаж системы водопровода с устройством скважины до 35 м;
Разводка электрики по точкам;
Ввод кабеля в дом от столба электричества;
Монтаж системы отопления теплым полом и биметаллическими радиаторами*;
Двухэтажный дом из оцилиндрованного бревна 300мм диаметра В стоимость входит:
«ПОД УСАДКУ»
1. Монолит: Выемка грунта механическим способом. Отсыпка песком и щебнем с трамбовкой послойно механическим способом. Гидроизоляция из геотекстиля под песок, мембрана профилированная PLANTER standard, Закладные трубы ПВХ под канализацию с греющим кабелем, установка арматурной обвязки (горячекатаная) арматура сталь периодического профиля класса А-Ш диаметром 8-12мм) с шагом 250мм, Заливка бетона Н300мм (крупность заполнения 40мм, класс В22.5 (М300). 2. Стены: монтаж стен оцилиндрованное бревно Диаметр 200-320мм или профилированный брус сечение 142х142 или 192х142мм монтаж бревна (бруса) осуществляется с помощью деревянных нагелей; укладка джутовой ленты между венцами монтаж лаг пола из бруса 200*100 мм через 600 мм; монтаж меж этажных балок перекрытия из бруса 200*100 мм через 600 мм метизы (скобы, саморезы, компенсаторы усадки)
3. Стропильная конструкция: стропильная конструкция из доски 150*50 мм скользящие опоры стропила через 600 мм; обрешетка из доски 150*25 мм; контр обрешетка брусок 50/50; ветро-гидроизоляция монтаж металлочерепицы Ламонтерра 0,45мм полиэстер 4. Бесплатные услуги: проектная документация; (эскиз проект) организация строительной бригады; доставка материалов на объект; разгрузка материалов;
«Теплый контур»
1. Коммуникации:
Монтаж системы канализации с устройством септика (металлическая емкость) 10м3;
Монтаж системы водопровода с устройством скважины до 35 м;
Разводка электрики по точкам;
Ввод кабеля в дом от столба электричества;
Монтаж системы отопления теплым полом и биметаллическими радиаторами*;
Двухэтажный дом из оцилиндрованного бревна 260мм диаметр В стоимость домокомплекта под усадку входит:
1. Ленточный фундамент 350ммх700мм: Геодезические работы по привязке фундамента в натуру земляные работы, устройство подушки из песка и щебня 20-40 фракции; монтаж опалубки (щиты из досок 150/50) вязка арматурного каркаса диаметром 10мм Прием и заливка бетона (крупность заполнения 40мм, М250
2. Стены: монтаж стен оцилиндрованное бревно Диаметр 200-320мм или профилированный брус сечение 142х142 или 192х142мм монтаж бревна (бруса) осуществляется с помощью деревянных нагелей; укладка джутовой ленты между венцами монтаж лаг пола из бруса 200*100 мм через 600; монтаж меж этажных балок перекрытия из бруса 200*100 мм через 600 метизы (скобы, саморезы, компенсаторы усадки)
3. Стропильная конструкция: стропильная конструкция из доски 150*50 мм скользящие опоры стропила через 600 мм; обрешетка из доски 150*25 мм; контр обрешетка брусок 50/50; ветро-гидроизоляция монтаж металлолчерепицы Монтерей 0,45мм полиэстер 4. Бесплатные услуги: проектная документация; (эскиз проект) организация строительной бригады; доставка материалов на объект; разгрузка материалов; контроль качества «Теплый контур»
1. Коммуникации:
Монтаж системы канализации с устройством септика (металлическая емкость) 10м3;
Монтаж системы водопровода с устройством скважины до 35 м;
Разводка электрики по точкам;
Ввод кабеля в дом от столба электричества;
Монтаж системы отопления теплым полом и биметаллическими радиаторами*;
Двухэтажный дом из оцилиндрованного бревна 240мм диаметра В стоимость входит:
«ПОД УСАДКУ»
1. Монолит: Выемка грунта механическим способом. Отсыпка песком и щебнем с трамбовкой послойно механическим способом. Гидроизоляция из геотекстиля под песок, мембрана профилированная PLANTER standard, Закладные трубы ПВХ под канализацию с греющим кабелем, установка арматурной обвязки (горячекатаная) арматура сталь периодического профиля класса А-Ш диаметром 8-12мм) с шагом 250мм, Заливка бетона Н300мм (крупность заполнения 40мм, класс В22.5 (М300). 2. Стены: монтаж стен оцилиндрованное бревно Диаметр 200-320мм или профилированный брус сечение 142х142 или 192х142мм монтаж бревна (бруса) осуществляется с помощью деревянных нагелей; укладка джутовой ленты между венцами монтаж лаг пола из бруса 200*100 мм через 600 мм; монтаж меж этажных балок перекрытия из бруса 200*100 мм через 600 мм метизы (скобы, саморезы, компенсаторы усадки)
3. Стропильная конструкция: стропильная конструкция из доски 150*50 мм скользящие опоры стропила через 600 мм; обрешетка из доски 150*25 мм; контр обрешетка брусок 50/50; ветро-гидроизоляция монтаж металлочерепицы Ламонтерра 0,45мм полиэстер 4. Бесплатные услуги: проектная документация; (эскиз проект) организация строительной бригады; доставка материалов на объект; разгрузка материалов;
«Теплый контур»
1. Коммуникации:
Монтаж системы канализации с устройством септика (металлическая емкость) 10м3;
Монтаж системы водопровода с устройством скважины до 35 м;
Разводка электрики по точкам;
Ввод кабеля в дом от столба электричества;
Монтаж системы отопления теплым полом и биметаллическими радиаторами*;
Одноэтажный дом из оцилиндрованного бревна 240мм диаметра. Дом построен в д. Решетниково-2 в 2023г В стоимость входит:
«ПОД УСАДКУ»
1. Монолит: Выемка грунта механическим способом. Отсыпка песком и щебнем с трамбовкой послойно механическим способом. Гидроизоляция из геотекстиля под песок, мембрана профилированная PLANTER standard, Закладные трубы ПВХ под канализацию с греющим кабелем, установка арматурной обвязки (горячекатаная) арматура сталь периодического профиля класса А-Ш диаметром 8-12мм) с шагом 250мм, Заливка бетона Н300мм (крупность заполнения 40мм, класс В22.5 (М300). 2. Стены: монтаж стен оцилиндрованное бревно Диаметр 200-320мм или профилированный брус сечение 142х142 или 192х142мм монтаж бревна (бруса) осуществляется с помощью деревянных нагелей; укладка джутовой ленты между венцами монтаж лаг пола из бруса 200*100 мм через 600 мм; монтаж меж этажных балок перекрытия из бруса 200*100 мм через 600 мм метизы (скобы, саморезы, компенсаторы усадки)
3. Стропильная конструкция: стропильная конструкция из доски 150*50 мм скользящие опоры стропила через 600 мм; обрешетка из доски 150*25 мм; контр обрешетка брусок 50/50; ветро-гидроизоляция монтаж металлочерепицы Ламонтерра 0,45мм полиэстер 4. Бесплатные услуги: проектная документация; (эскиз проект) организация строительной бригады; доставка материалов на объект; разгрузка материалов;
«Теплый контур»
1. Коммуникации:
Монтаж системы канализации с устройством септика (металлическая емкость) 10м3;
Монтаж системы водопровода с устройством скважины до 35 м;
Разводка электрики по точкам;
Ввод кабеля в дом от столба электричества;
Монтаж системы отопления теплым полом и биметаллическими радиаторами*;
Одноэтажный дом из оцилиндрованного бревна 240мм диаметра В стоимость входит:
«ПОД УСАДКУ»
1. Монолит: Выемка грунта механическим способом. Отсыпка песком и щебнем с трамбовкой послойно механическим способом. Гидроизоляция из геотекстиля под песок, мембрана профилированная PLANTER standard, Закладные трубы ПВХ под канализацию с греющим кабелем, установка арматурной обвязки (горячекатаная) арматура сталь периодического профиля класса А-Ш диаметром 8-12мм) с шагом 250мм, Заливка бетона Н300мм (крупность заполнения 40мм, класс В22.5 (М300). 2. Стены: монтаж стен оцилиндрованное бревно Диаметр 200-320мм или профилированный брус сечение 142х142 или 192х142мм монтаж бревна (бруса) осуществляется с помощью деревянных нагелей; укладка джутовой ленты между венцами монтаж лаг пола из бруса 200*100 мм через 600 мм; монтаж меж этажных балок перекрытия из бруса 200*100 мм через 600 мм метизы (скобы, саморезы, компенсаторы усадки)
3. Стропильная конструкция: стропильная конструкция из доски 150*50 мм скользящие опоры стропила через 600 мм; обрешетка из доски 150*25 мм; контр обрешетка брусок 50/50; ветро-гидроизоляция монтаж металлочерепицы Ламонтерра 0,45мм полиэстер 4. Бесплатные услуги: проектная документация; (эскиз проект) организация строительной бригады; доставка материалов на объект; разгрузка материалов;
«Теплый контур»
1. Коммуникации:
Монтаж системы канализации с устройством септика (металлическая емкость) 10м3;
Монтаж системы водопровода с устройством скважины до 35 м;
Разводка электрики по точкам;
Ввод кабеля в дом от столба электричества;
Монтаж системы отопления теплым полом и биметаллическими радиаторами*;
Одноэтажная баня из профилированного бруса 142х142мм В стоимость входит:
«ПОД УСАДКУ»
1. Монолит: Выемка грунта механическим способом. Отсыпка песком и щебнем с трамбовкой послойно механическим способом. Гидроизоляция из геотекстиля под песок, мембрана профилированная PLANTER standard, Закладные трубы ПВХ под канализацию с греющим кабелем, установка арматурной обвязки (горячекатаная) арматура сталь периодического профиля класса А-Ш диаметром 8-12мм) с шагом 250мм, Заливка бетона Н300мм (крупность заполнения 40мм, класс В22.5 (М300). 2. Стены: монтаж стен оцилиндрованное бревно Диаметр 200-320мм или профилированный брус сечение 142х142 или 192х142мм монтаж бревна (бруса) осуществляется с помощью деревянных нагелей; укладка джутовой ленты между венцами монтаж лаг пола из бруса 200*100 мм через 600 мм; монтаж меж этажных балок перекрытия из бруса 200*100 мм через 600 мм метизы (скобы, саморезы, компенсаторы усадки)
3. Стропильная конструкция: стропильная конструкция из доски 150*50 мм скользящие опоры стропила через 600 мм; обрешетка из доски 150*25 мм; контр обрешетка брусок 50/50; ветро-гидроизоляция монтаж металлочерепицы Ламонтерра 0,45мм полиэстер 4. Бесплатные услуги: проектная документация; (эскиз проект) организация строительной бригады; доставка материалов на объект; разгрузка материалов;
«Теплый контур»
1. Коммуникации:
Монтаж системы канализации с устройством септика (металлическая емкость) 10м3;
Монтаж системы водопровода с устройством скважины до 35 м;
Разводка электрики по точкам;
Ввод кабеля в дом от столба электричества;
Монтаж системы отопления теплым полом и биметаллическими радиаторами*;
Одноэтажная баня из оцилиндрованного бревна 200мм диаметра В стоимость входит:
«ПОД УСАДКУ»
1. Монолит: Выемка грунта механическим способом. Отсыпка песком и щебнем с трамбовкой послойно механическим способом. Гидроизоляция из геотекстиля под песок, мембрана профилированная PLANTER standard, Закладные трубы ПВХ под канализацию с греющим кабелем, установка арматурной обвязки (горячекатаная) арматура сталь периодического профиля класса А-Ш диаметром 8-12мм) с шагом 250мм, Заливка бетона Н300мм (крупность заполнения 40мм, класс В22.5 (М300). 2. Стены: монтаж стен оцилиндрованное бревно Диаметр 200-320мм или профилированный брус сечение 142х142 или 192х142мм монтаж бревна (бруса) осуществляется с помощью деревянных нагелей; укладка джутовой ленты между венцами монтаж лаг пола из бруса 200*100 мм через 600 мм; монтаж меж этажных балок перекрытия из бруса 200*100 мм через 600 мм метизы (скобы, саморезы, компенсаторы усадки)
3. Стропильная конструкция: стропильная конструкция из доски 150*50 мм скользящие опоры стропила через 600 мм; обрешетка из доски 150*25 мм; контр обрешетка брусок 50/50; ветро-гидроизоляция монтаж металлочерепицы Ламонтерра 0,45мм полиэстер 4. Бесплатные услуги: проектная документация; (эскиз проект) организация строительной бригады; доставка материалов на объект; разгрузка материалов;
«Теплый контур»
1. Коммуникации:
Монтаж системы канализации с устройством септика (металлическая емкость) 10м3;
Монтаж системы водопровода с устройством скважины до 35 м;
Разводка электрики по точкам;
Ввод кабеля в дом от столба электричества;
Монтаж системы отопления теплым полом и биметаллическими радиаторами*;
Одноэтажная баня из оцилиндрованного бревна 200мм диаметра В стоимость входит:
«ПОД УСАДКУ»
1. Монолит: Выемка грунта механическим способом. Отсыпка песком и щебнем с трамбовкой послойно механическим способом. Гидроизоляция из геотекстиля под песок, мембрана профилированная PLANTER standard, Закладные трубы ПВХ под канализацию с греющим кабелем, установка арматурной обвязки (горячекатаная) арматура сталь периодического профиля класса А-Ш диаметром 8-12мм) с шагом 250мм, Заливка бетона Н300мм (крупность заполнения 40мм, класс В22.5 (М300). 2. Стены: монтаж стен оцилиндрованное бревно Диаметр 200-320мм или профилированный брус сечение 142х142 или 192х142мм монтаж бревна (бруса) осуществляется с помощью деревянных нагелей; укладка джутовой ленты между венцами монтаж лаг пола из бруса 200*100 мм через 600 мм; монтаж меж этажных балок перекрытия из бруса 200*100 мм через 600 мм метизы (скобы, саморезы, компенсаторы усадки)
3. Стропильная конструкция: стропильная конструкция из доски 150*50 мм скользящие опоры стропила через 600 мм; обрешетка из доски 150*25 мм; контр обрешетка брусок 50/50; ветро-гидроизоляция монтаж металлочерепицы Ламонтерра 0,45мм полиэстер 4. Бесплатные услуги: проектная документация; (эскиз проект) организация строительной бригады; доставка материалов на объект; разгрузка материалов;
«Теплый контур»
1. Коммуникации:
Монтаж системы канализации с устройством септика (металлическая емкость) 10м3;
Монтаж системы водопровода с устройством скважины до 35 м;
Разводка электрики по точкам;
Ввод кабеля в дом от столба электричества;
Монтаж системы отопления теплым полом и биметаллическими радиаторами*;
Одноэтажная баня из оцилиндрованного бревна 200мм диаметра В стоимость входит:
«ПОД УСАДКУ»
1. Монолит: Выемка грунта механическим способом. Отсыпка песком и щебнем с трамбовкой послойно механическим способом. Гидроизоляция из геотекстиля под песок, мембрана профилированная PLANTER standard, Закладные трубы ПВХ под канализацию с греющим кабелем, установка арматурной обвязки (горячекатаная) арматура сталь периодического профиля класса А-Ш диаметром 8-12мм) с шагом 250мм, Заливка бетона Н300мм (крупность заполнения 40мм, класс В22.5 (М300). 2. Стены: монтаж стен оцилиндрованное бревно Диаметр 200-320мм или профилированный брус сечение 142х142 или 192х142мм монтаж бревна (бруса) осуществляется с помощью деревянных нагелей; укладка джутовой ленты между венцами монтаж лаг пола из бруса 200*100 мм через 600 мм; монтаж меж этажных балок перекрытия из бруса 200*100 мм через 600 мм метизы (скобы, саморезы, компенсаторы усадки)
3. Стропильная конструкция: стропильная конструкция из доски 150*50 мм скользящие опоры стропила через 600 мм; обрешетка из доски 150*25 мм; контр обрешетка брусок 50/50; ветро-гидроизоляция монтаж металлочерепицы Ламонтерра 0,45мм полиэстер 4. Бесплатные услуги: проектная документация; (эскиз проект) организация строительной бригады; доставка материалов на объект; разгрузка материалов;
«Теплый контур»
1. Коммуникации:
Монтаж системы канализации с устройством септика (металлическая емкость) 10м3;
Монтаж системы водопровода с устройством скважины до 35 м;
Разводка электрики по точкам;
Ввод кабеля в дом от столба электричества;
Монтаж системы отопления теплым полом и биметаллическими радиаторами*;
Двухэтажная баня из профилированного бруса 142х142мм В стоимость входит:
«ПОД УСАДКУ»
1. Монолит: Выемка грунта механическим способом. Отсыпка песком и щебнем с трамбовкой послойно механическим способом. Гидроизоляция из геотекстиля под песок, мембрана профилированная PLANTER standard, Закладные трубы ПВХ под канализацию с греющим кабелем, установка арматурной обвязки (горячекатаная) арматура сталь периодического профиля класса А-Ш диаметром 8-12мм) с шагом 250мм, Заливка бетона Н300мм (крупность заполнения 40мм, класс В22.5 (М300). 2. Стены: монтаж стен оцилиндрованное бревно Диаметр 200-320мм или профилированный брус сечение 142х142 или 192х142мм монтаж бревна (бруса) осуществляется с помощью деревянных нагелей; укладка джутовой ленты между венцами монтаж лаг пола из бруса 200*100 мм через 600 мм; монтаж меж этажных балок перекрытия из бруса 200*100 мм через 600 мм метизы (скобы, саморезы, компенсаторы усадки)
3. Стропильная конструкция: стропильная конструкция из доски 150*50 мм скользящие опоры стропила через 600 мм; обрешетка из доски 150*25 мм; контр обрешетка брусок 50/50; ветро-гидроизоляция монтаж металлочерепицы Ламонтерра 0,45мм полиэстер 4. Бесплатные услуги: проектная документация; (эскиз проект) организация строительной бригады; доставка материалов на объект; разгрузка материалов;
«Теплый контур»
1. Коммуникации:
Монтаж системы канализации с устройством септика (металлическая емкость) 10м3;
Монтаж системы водопровода с устройством скважины до 35 м;
Разводка электрики по точкам;
Ввод кабеля в дом от столба электричества;
Монтаж системы отопления теплым полом и биметаллическими радиаторами*;
Одноэтажная баня из оцилиндрованного бревна 220мм диаметра В стоимость входит:
«ПОД УСАДКУ»
1. Монолит: Выемка грунта механическим способом. Отсыпка песком и щебнем с трамбовкой послойно механическим способом. Гидроизоляция из геотекстиля под песок, мембрана профилированная PLANTER standard, Закладные трубы ПВХ под канализацию с греющим кабелем, установка арматурной обвязки (горячекатаная) арматура сталь периодического профиля класса А-Ш диаметром 8-12мм) с шагом 250мм, Заливка бетона Н300мм (крупность заполнения 40мм, класс В22.5 (М300). 2. Стены: монтаж стен оцилиндрованное бревно Диаметр 200-320мм или профилированный брус сечение 142х142 или 192х142мм монтаж бревна (бруса) осуществляется с помощью деревянных нагелей; укладка джутовой ленты между венцами монтаж лаг пола из бруса 200*100 мм через 600 мм; монтаж меж этажных балок перекрытия из бруса 200*100 мм через 600 мм метизы (скобы, саморезы, компенсаторы усадки)
3. Стропильная конструкция: стропильная конструкция из доски 150*50 мм скользящие опоры стропила через 600 мм; обрешетка из доски 150*25 мм; контр обрешетка брусок 50/50; ветро-гидроизоляция монтаж металлочерепицы Ламонтерра 0,45мм полиэстер 4. Бесплатные услуги: проектная документация; (эскиз проект) организация строительной бригады; доставка материалов на объект; разгрузка материалов;
«Теплый контур»
1. Коммуникации:
Монтаж системы канализации с устройством септика (металлическая емкость) 10м3;
Монтаж системы водопровода с устройством скважины до 35 м;
Разводка электрики по точкам;
Ввод кабеля в дом от столба электричества;
Монтаж системы отопления теплым полом и биметаллическими радиаторами*;
Двухэтажная баня из оцилиндрованного бревна 220мм диаметра В стоимость входит:
«ПОД УСАДКУ»
1. Монолит: Выемка грунта механическим способом. Отсыпка песком и щебнем с трамбовкой послойно механическим способом. Гидроизоляция из геотекстиля под песок, мембрана профилированная PLANTER standard, Закладные трубы ПВХ под канализацию с греющим кабелем, установка арматурной обвязки (горячекатаная) арматура сталь периодического профиля класса А-Ш диаметром 8-12мм) с шагом 250мм, Заливка бетона Н300мм (крупность заполнения 40мм, класс В22.5 (М300). 2. Стены: монтаж стен оцилиндрованное бревно Диаметр 200-320мм или профилированный брус сечение 142х142 или 192х142мм монтаж бревна (бруса) осуществляется с помощью деревянных нагелей; укладка джутовой ленты между венцами монтаж лаг пола из бруса 200*100 мм через 600 мм; монтаж меж этажных балок перекрытия из бруса 200*100 мм через 600 мм метизы (скобы, саморезы, компенсаторы усадки)
3. Стропильная конструкция: стропильная конструкция из доски 150*50 мм скользящие опоры стропила через 600 мм; обрешетка из доски 150*25 мм; контр обрешетка брусок 50/50; ветро-гидроизоляция монтаж металлочерепицы Ламонтерра 0,45мм полиэстер 4. Бесплатные услуги: проектная документация; (эскиз проект) организация строительной бригады; доставка материалов на объект; разгрузка материалов;
«Теплый контур»
1. Коммуникации:
Монтаж системы канализации с устройством септика (металлическая емкость) 10м3;
Монтаж системы водопровода с устройством скважины до 35 м;
Разводка электрики по точкам;
Ввод кабеля в дом от столба электричества;
Монтаж системы отопления теплым полом и биметаллическими радиаторами*;
Одноэтажная баня из оцилиндрованного бревна 220мм диаметра В стоимость входит:
«ПОД УСАДКУ»
1. Монолит: Выемка грунта механическим способом. Отсыпка песком и щебнем с трамбовкой послойно механическим способом. Гидроизоляция из геотекстиля под песок, мембрана профилированная PLANTER standard, Закладные трубы ПВХ под канализацию с греющим кабелем, установка арматурной обвязки (горячекатаная) арматура сталь периодического профиля класса А-Ш диаметром 8-12мм) с шагом 250мм, Заливка бетона Н300мм (крупность заполнения 40мм, класс В22.5 (М300). 2. Стены: монтаж стен оцилиндрованное бревно Диаметр 200-320мм или профилированный брус сечение 142х142 или 192х142мм монтаж бревна (бруса) осуществляется с помощью деревянных нагелей; укладка джутовой ленты между венцами монтаж лаг пола из бруса 200*100 мм через 600 мм; монтаж меж этажных балок перекрытия из бруса 200*100 мм через 600 мм метизы (скобы, саморезы, компенсаторы усадки)
3. Стропильная конструкция: стропильная конструкция из доски 150*50 мм скользящие опоры стропила через 600 мм; обрешетка из доски 150*25 мм; контр обрешетка брусок 50/50; ветро-гидроизоляция монтаж металлочерепицы Ламонтерра 0,45мм полиэстер 4. Бесплатные услуги: проектная документация; (эскиз проект) организация строительной бригады; доставка материалов на объект; разгрузка материалов;
«Теплый контур»
1. Коммуникации:
Монтаж системы канализации с устройством септика (металлическая емкость) 10м3;
Монтаж системы водопровода с устройством скважины до 35 м;
Разводка электрики по точкам;
Ввод кабеля в дом от столба электричества;
Монтаж системы отопления теплым полом и биметаллическими радиаторами*;
Двухэтажная баня из оцилиндрованного бревна 220мм диаметра В стоимость входит:
«ПОД УСАДКУ»
1. Монолит: Выемка грунта механическим способом. Отсыпка песком и щебнем с трамбовкой послойно механическим способом. Гидроизоляция из геотекстиля под песок, мембрана профилированная PLANTER standard, Закладные трубы ПВХ под канализацию с греющим кабелем, установка арматурной обвязки (горячекатаная) арматура сталь периодического профиля класса А-Ш диаметром 8-12мм) с шагом 250мм, Заливка бетона Н300мм (крупность заполнения 40мм, класс В22.5 (М300). 2. Стены: монтаж стен оцилиндрованное бревно Диаметр 200-320мм или профилированный брус сечение 142х142 или 192х142мм монтаж бревна (бруса) осуществляется с помощью деревянных нагелей; укладка джутовой ленты между венцами монтаж лаг пола из бруса 200*100 мм через 600 мм; монтаж меж этажных балок перекрытия из бруса 200*100 мм через 600 мм метизы (скобы, саморезы, компенсаторы усадки)
3. Стропильная конструкция: стропильная конструкция из доски 150*50 мм скользящие опоры стропила через 600 мм; обрешетка из доски 150*25 мм; контр обрешетка брусок 50/50; ветро-гидроизоляция монтаж металлочерепицы Ламонтерра 0,45мм полиэстер 4. Бесплатные услуги: проектная документация; (эскиз проект) организация строительной бригады; доставка материалов на объект; разгрузка материалов;
«Теплый контур»
1. Коммуникации:
Монтаж системы канализации с устройством септика (металлическая емкость) 10м3;
Монтаж системы водопровода с устройством скважины до 35 м;
Разводка электрики по точкам;
Ввод кабеля в дом от столба электричества;
Монтаж системы отопления теплым полом и биметаллическими радиаторами*;
Двухэтажная баня из профилированного бруса 192х142мм В стоимость входит:
«ПОД УСАДКУ»
1. Монолит: Выемка грунта механическим способом. Отсыпка песком и щебнем с трамбовкой послойно механическим способом. Гидроизоляция из геотекстиля под песок, мембрана профилированная PLANTER standard, Закладные трубы ПВХ под канализацию с греющим кабелем, установка арматурной обвязки (горячекатаная) арматура сталь периодического профиля класса А-Ш диаметром 8-12мм) с шагом 250мм, Заливка бетона Н300мм (крупность заполнения 40мм, класс В22.5 (М300). 2. Стены: монтаж стен оцилиндрованное бревно Диаметр 200-320мм или профилированный брус сечение 142х142 или 192х142мм монтаж бревна (бруса) осуществляется с помощью деревянных нагелей; укладка джутовой ленты между венцами монтаж лаг пола из бруса 200*100 мм через 600 мм; монтаж меж этажных балок перекрытия из бруса 200*100 мм через 600 мм метизы (скобы, саморезы, компенсаторы усадки)
3. Стропильная конструкция: стропильная конструкция из доски 150*50 мм скользящие опоры стропила через 600 мм; обрешетка из доски 150*25 мм; контр обрешетка брусок 50/50; ветро-гидроизоляция монтаж металлочерепицы Ламонтерра 0,45мм полиэстер 4. Бесплатные услуги: проектная документация; (эскиз проект) организация строительной бригады; доставка материалов на объект; разгрузка материалов;
«Теплый контур»
1. Коммуникации:
Монтаж системы канализации с устройством септика (металлическая емкость) 10м3;
Монтаж системы водопровода с устройством скважины до 35 м;
Разводка электрики по точкам;
Ввод кабеля в дом от столба электричества;
Монтаж системы отопления теплым полом и биметаллическими радиаторами*;
Двухэтажная баня из профилированного бруса 192х142мм В стоимость входит:
«ПОД УСАДКУ»
1. Монолит: Выемка грунта механическим способом. Отсыпка песком и щебнем с трамбовкой послойно механическим способом. Гидроизоляция из геотекстиля под песок, мембрана профилированная PLANTER standard, Закладные трубы ПВХ под канализацию с греющим кабелем, установка арматурной обвязки (горячекатаная) арматура сталь периодического профиля класса А-Ш диаметром 8-12мм) с шагом 250мм, Заливка бетона Н300мм (крупность заполнения 40мм, класс В22.5 (М300). 2. Стены: монтаж стен оцилиндрованное бревно Диаметр 200-320мм или профилированный брус сечение 142х142 или 192х142мм монтаж бревна (бруса) осуществляется с помощью деревянных нагелей; укладка джутовой ленты между венцами монтаж лаг пола из бруса 200*100 мм через 600 мм; монтаж меж этажных балок перекрытия из бруса 200*100 мм через 600 мм метизы (скобы, саморезы, компенсаторы усадки)
3. Стропильная конструкция: стропильная конструкция из доски 150*50 мм скользящие опоры стропила через 600 мм; обрешетка из доски 150*25 мм; контр обрешетка брусок 50/50; ветро-гидроизоляция монтаж металлочерепицы Ламонтерра 0,45мм полиэстер 4. Бесплатные услуги: проектная документация; (эскиз проект) организация строительной бригады; доставка материалов на объект; разгрузка материалов;
«Теплый контур»
1. Коммуникации:
Монтаж системы канализации с устройством септика (металлическая емкость) 10м3;
Монтаж системы водопровода с устройством скважины до 35 м;
Разводка электрики по точкам;
Ввод кабеля в дом от столба электричества;
Монтаж системы отопления теплым полом и биметаллическими радиаторами*;
Одноэтажная баня из оцилиндрованного бревна 220мм диаметра В стоимость входит:
«ПОД УСАДКУ»
1. Монолит: Выемка грунта механическим способом. Отсыпка песком и щебнем с трамбовкой послойно механическим способом. Гидроизоляция из геотекстиля под песок, мембрана профилированная PLANTER standard, Закладные трубы ПВХ под канализацию с греющим кабелем, установка арматурной обвязки (горячекатаная) арматура сталь периодического профиля класса А-Ш диаметром 8-12мм) с шагом 250мм, Заливка бетона Н300мм (крупность заполнения 40мм, класс В22.5 (М300). 2. Стены: монтаж стен оцилиндрованное бревно Диаметр 200-320мм или профилированный брус сечение 142х142 или 192х142мм монтаж бревна (бруса) осуществляется с помощью деревянных нагелей; укладка джутовой ленты между венцами монтаж лаг пола из бруса 200*100 мм через 600 мм; монтаж меж этажных балок перекрытия из бруса 200*100 мм через 600 мм метизы (скобы, саморезы, компенсаторы усадки)
3. Стропильная конструкция: стропильная конструкция из доски 150*50 мм скользящие опоры стропила через 600 мм; обрешетка из доски 150*25 мм; контр обрешетка брусок 50/50; ветро-гидроизоляция монтаж металлочерепицы Ламонтерра 0,45мм полиэстер 4. Бесплатные услуги: проектная документация; (эскиз проект) организация строительной бригады; доставка материалов на объект; разгрузка материалов;
«Теплый контур»
1. Коммуникации:
Монтаж системы канализации с устройством септика (металлическая емкость) 10м3;
Монтаж системы водопровода с устройством скважины до 35 м;
Разводка электрики по точкам;
Ввод кабеля в дом от столба электричества;
Монтаж системы отопления теплым полом и биметаллическими радиаторами*;